- One-of-a-kind four-bedroom detached home with breathtaking views towards the Long Mynd
- Remote gated access, large driveway, integral garage and additional carport via private road
- Stunning open-plan living space with double-sided gas fire and underfloor heating throughout the ground floor
- Contemporary kitchen with quartz worktops, waterfall-edge breakfast bar and high-spec finish
- Luxury principal suite with dressing area and spa-style en-suite featuring bath, double shower and underfloor heating
- Extensive outdoor entertaining spaces including tiled patio, decking, hot tub area and south-facing gardens
- Impressive pool room with bi-fold doors, garden bar, Arctic cabin with firepit and workshop
- Highly energy-efficient home with EPC rating B and modern, thoughtfully renovated design
Full Description
CALL US TO ARRANGE A VIEWING 9AM - 9PM 7 DAYS A WEEK!GUIDE PRICE £850,000 - £875,000“Architecture is a visual art, and the buildings speak for themselves.” - Julia MorganA striking, architecturally impressive four-bedroom detached home set within a generous and private plot, enjoying breath-taking views towards the Long Mynd. Exceptionally designed both inside and out, the property combines a high-impact exterior with beautifully finished, contemporary interiors. Featuring luxury open-plan living, extensive entertaining spaces, and outstanding energy efficiency, this is a truly one-of-a-kind home in an enviable position.
Denise White Estate Agents Comments
Denise White Estate Agents are delighted to welcome to the market a truly one-of-a-kind, exceptionally presented four-bedroom detached residence, enviably positioned on Windmill Hill.
Fittingly named “The Mynd”, this impressive home has been meticulously designed to create a seamless and cohesive living environment, thoughtfully orientated to maximise the breathtaking views across the Long Mynd in Shropshire.
This show-stopping residence is approached via remote-controlled gated access, opening onto a generous driveway and integral garage. The striking exterior immediately creates a lasting impression and sits proudly within a substantial plot. Lawned gardens wrap around the front of the home, complemented by mature borders and a tranquil water feature.
Upon entering, you are welcomed into a practical entrance porch with built-in storage. Underfloor heating runs throughout the entire ground floor, setting the tone for the exceptional level of finish found throughout the property. The heart of the home is a superb open-plan living space, designed to be both functional and inviting.
A double-sided gas fireplace cleverly divides the sitting area, creating distinct yet connected spaces across the ground floor, all unified by the home’s high-quality finish. Two large side-aspect windows perfectly frame the stunning views towards Shropshire.
The contemporary kitchen is fitted with sleek modern units, quartz worktops, and an impressive breakfast bar with waterfall edge, forming an immediate focal point as you enter the home. To the front of the property, a separate reception room accessed via double doors offers versatility as a home office, snug, or playroom.
Further ground floor accommodation includes a utility room with fitted units, quartz worktops, pantry cupboard, and access to both the side of the property and the integral garage. A standout feature is the ground-floor shower room, conveniently accessed from the patio, complete with a walk-in shower — ideal for entertaining or outdoor use.
To the first floor, the impressive principal suite enjoys glorious south-west facing views, along with a separate dressing area and luxurious ensuite bathroom, both benefitting from underfloor heating. The ensuite features natural stone tiling, a double bath, and a double shower, creating a true spa-like retreat.
There are three further well-proportioned bedrooms, one with its own ensuite shower room (also with underfloor heating), while the remaining two are served by a stylish family bathroom. A surround sound system is installed throughout the majority of the home.
Externally, the property continues to exceed expectations. A beautifully tiled patio leads onto decking, alongside a raised pond with glass panel. To the western side, there is a dedicated hot tub area. The property also benefits from a substantial pool room with bi-fold doors opening directly onto the patio.
The rear garden is predominantly laid to lawn, south-facing, and bordered by mature hedgerows, providing privacy and seclusion. Additional features include a garden bar, a large workshop with access to a carport via a private road, and a charming Breeze House cabin complete with firepit.
Overall, The Mynd is a truly exceptional home, having undergone extensive renovations by the current owners and thoughtfully considered at every stage. It stands in a league of its own, offering outstanding energy efficiency with an EPC rating of B. Perfect for entertaining yet equally suited to family living, this is a striking architectural home with undeniable presence.
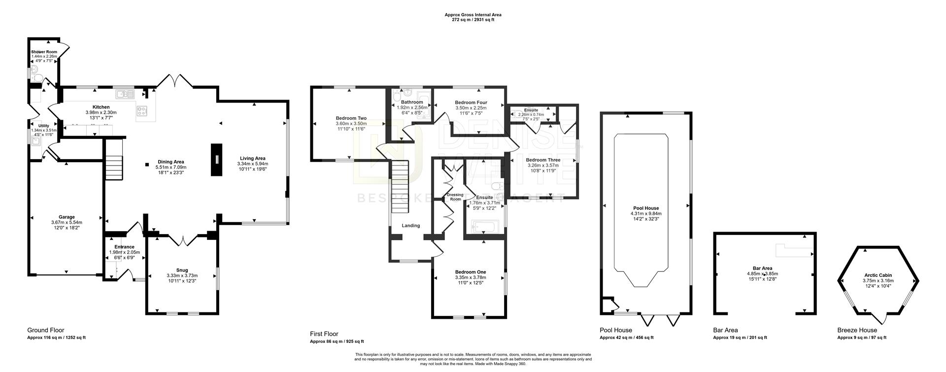
Entrance Hall (1.45 x 2.41 (4'9" x 7'10" ))
Tiled flooring with underfloor heating. Partially tiled walls. Composite door with frosted glass panel to the front aspect. Built in storage solutions. Inset Spotlight. Access into: –
Dining Area (7.37 x 5.31 (24'2" x 17'5" ))
Tiled flooring with underfloor heating. Stairs to the first floor accommodation. French doors to the rear aspect. Four downlights. Two pendant lights. Double sided living flame gas fire.
Living area (6.08 x 3.26 (19'11" x 10'8" ))
Continued tiled flooring. Two UPVC double glazed windows to the front and side aspects. Feature tiled wall. Three wall lights. Surround sound system.
Kitchen (2.53 x 4.21 (8'3" x 13'9" ))
A range of gloss wall and base units with 80 mil quartz tops above with waterfall edge breakfast bar. Two UPVC double glazed windows to the rear aspect. Integrated fridge, freezer, Neff dishwasher, double oven with foldaway door and microwave and grill. Stainless steel sink and drainer unit with mixer tap above. Induction hob with Bergström extractor fan above. Two pendant lights. Access into Utility.
Snug (3.36 x 3.75 (11'0" x 12'3" ))
Tiled flooring. Three UPVC double glazed windows to the side and front aspects. Double doors into dining room. Pendant light.
Utility (1.39 x 3.52 (4'6" x 11'6" ))
Tiled flooring. A range of gloss wall and base units with quartz worktops above. Stainless steel sink and drainer unit with mixer tap above. Pantry cupboard. Wall mounted BAXI boiler. Composite door to the side aspect. UPVC double glazed window to the side aspect. Access into garage. Access into: –
Shower Room (1.45 x 2.13 (4'9" x 6'11" ))
Tiled flooring. Electric wall mounted towel rail. Low-level WC. Wash hand basin with storage underneath. Walk-in shower with rain style showerhead. Ceiling light. Composite door to the side aspect onto rear patio area.
Integral Garage (3.67 x 5.54 (12'0" x 18'2"))
Tiled flooring. Electric up and over door to the front aspect. Power and lighting. Access into utility.
First Floor Landing
Fitted carpet. Glass balustrade. Two uPVC double glazed windows to the front and side aspect. Pendant light.
Bedroom One (3.77 x 3.36 (12'4" x 11'0" ))
Fitted carpet. Wall mounted radiator. Three UPVC double glazed windows to the front and side aspects. Bespoke headboard with lighting. Two wall lights. Built-in shoe storage. Pendant light.
Dressing Room (0.92 to wardrobes x 3.36 to wardrobes (3'0" to war)
Tiled flooring. Range of built-in wardrobes. Wall mounted radiator. Inset spotlights. Access into: –
Ensuite (1.75 x 3.73 (5'8" x 12'2" ))
Tiled flooring. Natural stone tiled walls. Double bath with wall mounted taps. Two wall mounted radiators. Low-level WC. Wash hand basin with storage underneath. Double shower with rain style showerheads. Inset spotlights. UPVC double glazed frosted window to the side aspect.
Bedroom Two (3.53 x 3.65 (11'6" x 11'11" ))
Fitted carpet. Wall mounted radiator. Two uPVC double glazed windows to the front and rear aspects. Ceiling light.
Bedroom Three (3.28 x 3.59 (10'9" x 11'9" ))
Fitted carpet. Wall mounted radiator. Bespoke feature panelled wall. Three uPVC double glazed windows to the front and side aspects. Built-in wardrobe. Access into: –
Ensuite (0.77 x 2.41 (2'6" x 7'10" ))
Tiled flooring with underfloor heating. Tiled walls. Low-level WC. Wall mounted wash hand basin with storage underneath. Walk-in shower cubicle. Inset spotlights.
Bedroom Four (3.53 x 2.31 (11'6" x 7'6" ))
Fitted carpet. Wall mounted radiator. uPVC double glazed window to the rear aspect. Ceiling light.
Bathroom (2.53 x 1.90 (8'3" x 6'2" ))
Tiled flooring. Tiled walls. Low level WC. Wash hand basin with storage underneath. Fitted bath with glass shower screen and shower above. Wall mounted towel rail. Obscured UPVC double glazed window to the rear aspect. Inset spotlights.
Outside
The property is approached via remote-controlled gated access, leading onto a generous driveway providing ample parking alongside an integral garage. A further carport is accessed via a private road, offering excellent flexibility for multiple vehicles. The home sits within a spacious and private plot, with lawned gardens wrapping around the front and side, enhanced by mature borders and a water feature.
To the rear, the south-facing garden is predominantly laid to lawn and bordered by mature hedgerows, creating a secluded setting. A beautifully tiled patio and decked area provide ideal spaces for outdoor entertaining, complemented by a raised pond with glass panel and a dedicated hot tub area.
Pool House (4.31 x 9.84 (14'1" x 32'3" ))
Tiled flooring. Bifold doors to the front aspect. uPVC double glazed windows to the side and rear aspect. Power and lighting.
State of the art air source pump, brand new 2025. Running costs of the swimming pool at 34 degrees Celsius approx £700 per annum.
Arctic Cabin (3.12 x 3.65 (10'2" x 11'11" ))
Wooden flooring. Wooden door to the front aspect. Built-seating. Firepit.
Agents Notes
Tenure: Freehold
Services: All mains services connected
Council Tax: Stafford Band E
Please Note
Please note that all areas, measurements and distances given in these particulars are approximate and rounded. The text, photographs and floor plans are for general guidance only. Denise White Estate Agents has not tested any services, appliances or specific fittings — prospective purchasers are advised to inspect the property themselves. All fixtures, fittings and furniture not specifically itemised within these particulars are deemed removable by the vendor.
About Your Agent
"In a world where you can be anything, be kind"
Denise is the director of Denise White Estate agents and has worked in the local area since 1999. Denise and the team can help and advise with any information on the local property market and the local area.
Denise White Estate Agents deal with all aspects of property including residential sales and lettings.
Please do get in touch with us if you need any help or advise.
Property To Sell?
We can arrange an appointment that is convenient with yourself, we'll view your property and give you an informed FREE market appraisal and arrange the next steps for you.
You Need A Solicitor!
A good conveyancing solicitor can make or break your moving experience – we’re happy to recommend or get a quote for you, so that when the times comes, you’re ready to go.
Do You Require A Mortgage?
Speak to us, we'd be more than happy to point you in the direction of a reputable adviser who works closely with ourselves.
WE WON!
Denise White Bespoke Estate Agents has been honoured with the esteemed Gold Award for two years running; 2024 & 2025 from the British Property Awards for their exceptional customer service and extensive local marketing knowledge in Leek and its surrounding areas.
The British Property Awards, renowned for their inclusivity and comprehensive evaluation process, assess estate agents across the United Kingdom based on their customer service levels and understanding of the local market. Denise White Estate Agents demonstrated outstanding performance throughout the rigorous and independent judging period.
Additionally the team have been successful in receiving the GOLD EXCEPTIONAL award from the British Estate Agency Guide 2025 & 2025 and being listed as one of the Top 500 Estate Agents in the UK.
The Best Estate Agency Guide assess data such as the time taken from listing as for sale to sale agreed, achieving the asking price vs the achieved price, market share of properties available, positive reviews and much more!
Anti-Money Laundering & ID Checks
Once an offer is accepted on a property marketed by Denise White Estate Agents we are required to complete ID verification checks on all buyers and to apply ongoing monitoring until the transaction ends. Whilst this is the responsibility of Denise White Estate Agents we may use the services of Guild365, to verify Clients’ identity. This is not a credit check and therefore will have no effect on your credit history. You agree for us to complete these checks, and the cost of these checks is £30.00 inc. VAT per buyer. This is paid in advance, when an offer is agreed and prior to a sales memorandum being issued. This charge is non-refundable.
Viewing
Please contact us on 01538 381772 if you wish to arrange a viewing appointment for this property, or require further information.
Disclaimer
Denise White Estate Agents - ST13 endeavour to maintain accurate depictions of properties in Virtual Tours, Floor Plans and descriptions, however, these are intended only as a guide and purchasers must satisfy themselves by personal inspection.
Denise White Estate Agents Comments
Denise White Estate Agents are delighted to welcome to the market a truly one-of-a-kind, exceptionally presented four-bedroom detached residence, enviably positioned on Windmill Hill.
Fittingly named “The Mynd”, this impressive home has been meticulously designed to create a seamless and cohesive living environment, thoughtfully orientated to maximise the breathtaking views across the Long Mynd in Shropshire.
This show-stopping residence is approached via remote-controlled gated access, opening onto a generous driveway and integral garage. The striking exterior immediately creates a lasting impression and sits proudly within a substantial plot. Lawned gardens wrap around the front of the home, complemented by mature borders and a tranquil water feature.
Upon entering, you are welcomed into a practical entrance porch with built-in storage. Underfloor heating runs throughout the entire ground floor, setting the tone for the exceptional level of finish found throughout the property. The heart of the home is a superb open-plan living space, designed to be both functional and inviting.
A double-sided gas fireplace cleverly divides the sitting area, creating distinct yet connected spaces across the ground floor, all unified by the home’s high-quality finish. Two large side-aspect windows perfectly frame the stunning views towards Shropshire.
The contemporary kitchen is fitted with sleek modern units, quartz worktops, and an impressive breakfast bar with waterfall edge, forming an immediate focal point as you enter the home. To the front of the property, a separate reception room accessed via double doors offers versatility as a home office, snug, or playroom.
Further ground floor accommodation includes a utility room with fitted units, quartz worktops, pantry cupboard, and access to both the side of the property and the integral garage. A standout feature is the ground-floor shower room, conveniently accessed from the patio, complete with a walk-in shower — ideal for entertaining or outdoor use.
To the first floor, the impressive principal suite enjoys glorious south-west facing views, along with a separate dressing area and luxurious ensuite bathroom, both benefitting from underfloor heating. The ensuite features natural stone tiling, a double bath, and a double shower, creating a true spa-like retreat.
There are three further well-proportioned bedrooms, one with its own ensuite shower room (also with underfloor heating), while the remaining two are served by a stylish family bathroom. A surround sound system is installed throughout the majority of the home.
Externally, the property continues to exceed expectations. A beautifully tiled patio leads onto decking, alongside a raised pond with glass panel. To the western side, there is a dedicated hot tub area. The property also benefits from a substantial pool room with bi-fold doors opening directly onto the patio.
The rear garden is predominantly laid to lawn, south-facing, and bordered by mature hedgerows, providing privacy and seclusion. Additional features include a garden bar, a large workshop with access to a carport via a private road, and a charming Breeze House cabin complete with firepit.
Overall, The Mynd is a truly exceptional home, having undergone extensive renovations by the current owners and thoughtfully considered at every stage. It stands in a league of its own, offering outstanding energy efficiency with an EPC rating of B. Perfect for entertaining yet equally suited to family living, this is a striking architectural home with undeniable presence.
Entrance Hall (1.45 x 2.41 (4'9" x 7'10" ))
Tiled flooring with underfloor heating. Partially tiled walls. Composite door with frosted glass panel to the front aspect. Built in storage solutions. Inset Spotlight. Access into: –
Dining Area (7.37 x 5.31 (24'2" x 17'5" ))
Tiled flooring with underfloor heating. Stairs to the first floor accommodation. French doors to the rear aspect. Four downlights. Two pendant lights. Double sided living flame gas fire.
Living area (6.08 x 3.26 (19'11" x 10'8" ))
Continued tiled flooring. Two UPVC double glazed windows to the front and side aspects. Feature tiled wall. Three wall lights. Surround sound system.
Kitchen (2.53 x 4.21 (8'3" x 13'9" ))
A range of gloss wall and base units with 80 mil quartz tops above with waterfall edge breakfast bar. Two UPVC double glazed windows to the rear aspect. Integrated fridge, freezer, Neff dishwasher, double oven with foldaway door and microwave and grill. Stainless steel sink and drainer unit with mixer tap above. Induction hob with Bergström extractor fan above. Two pendant lights. Access into Utility.
Snug (3.36 x 3.75 (11'0" x 12'3" ))
Tiled flooring. Three UPVC double glazed windows to the side and front aspects. Double doors into dining room. Pendant light.
Utility (1.39 x 3.52 (4'6" x 11'6" ))
Tiled flooring. A range of gloss wall and base units with quartz worktops above. Stainless steel sink and drainer unit with mixer tap above. Pantry cupboard. Wall mounted BAXI boiler. Composite door to the side aspect. UPVC double glazed window to the side aspect. Access into garage. Access into: –
Shower Room (1.45 x 2.13 (4'9" x 6'11" ))
Tiled flooring. Electric wall mounted towel rail. Low-level WC. Wash hand basin with storage underneath. Walk-in shower with rain style showerhead. Ceiling light. Composite door to the side aspect onto rear patio area.
Integral Garage (3.67 x 5.54 (12'0" x 18'2"))
Tiled flooring. Electric up and over door to the front aspect. Power and lighting. Access into utility.
First Floor Landing
Fitted carpet. Glass balustrade. Two uPVC double glazed windows to the front and side aspect. Pendant light.
Bedroom One (3.77 x 3.36 (12'4" x 11'0" ))
Fitted carpet. Wall mounted radiator. Three UPVC double glazed windows to the front and side aspects. Bespoke headboard with lighting. Two wall lights. Built-in shoe storage. Pendant light.
Dressing Room (0.92 to wardrobes x 3.36 to wardrobes (3'0" to war)
Tiled flooring. Range of built-in wardrobes. Wall mounted radiator. Inset spotlights. Access into: –
Ensuite (1.75 x 3.73 (5'8" x 12'2" ))
Tiled flooring. Natural stone tiled walls. Double bath with wall mounted taps. Two wall mounted radiators. Low-level WC. Wash hand basin with storage underneath. Double shower with rain style showerheads. Inset spotlights. UPVC double glazed frosted window to the side aspect.
Bedroom Two (3.53 x 3.65 (11'6" x 11'11" ))
Fitted carpet. Wall mounted radiator. Two uPVC double glazed windows to the front and rear aspects. Ceiling light.
Bedroom Three (3.28 x 3.59 (10'9" x 11'9" ))
Fitted carpet. Wall mounted radiator. Bespoke feature panelled wall. Three uPVC double glazed windows to the front and side aspects. Built-in wardrobe. Access into: –
Ensuite (0.77 x 2.41 (2'6" x 7'10" ))
Tiled flooring with underfloor heating. Tiled walls. Low-level WC. Wall mounted wash hand basin with storage underneath. Walk-in shower cubicle. Inset spotlights.
Bedroom Four (3.53 x 2.31 (11'6" x 7'6" ))
Fitted carpet. Wall mounted radiator. uPVC double glazed window to the rear aspect. Ceiling light.
Bathroom (2.53 x 1.90 (8'3" x 6'2" ))
Tiled flooring. Tiled walls. Low level WC. Wash hand basin with storage underneath. Fitted bath with glass shower screen and shower above. Wall mounted towel rail. Obscured UPVC double glazed window to the rear aspect. Inset spotlights.
Outside
The property is approached via remote-controlled gated access, leading onto a generous driveway providing ample parking alongside an integral garage. A further carport is accessed via a private road, offering excellent flexibility for multiple vehicles. The home sits within a spacious and private plot, with lawned gardens wrapping around the front and side, enhanced by mature borders and a water feature.
To the rear, the south-facing garden is predominantly laid to lawn and bordered by mature hedgerows, creating a secluded setting. A beautifully tiled patio and decked area provide ideal spaces for outdoor entertaining, complemented by a raised pond with glass panel and a dedicated hot tub area.
Pool House (4.31 x 9.84 (14'1" x 32'3" ))
Tiled flooring. Bifold doors to the front aspect. uPVC double glazed windows to the side and rear aspect. Power and lighting.
State of the art air source pump, brand new 2025. Running costs of the swimming pool at 34 degrees Celsius approx £700 per annum.
Arctic Cabin (3.12 x 3.65 (10'2" x 11'11" ))
Wooden flooring. Wooden door to the front aspect. Built-seating. Firepit.
Agents Notes
Tenure: Freehold
Services: All mains services connected
Council Tax: Stafford Band E
Please Note
Please note that all areas, measurements and distances given in these particulars are approximate and rounded. The text, photographs and floor plans are for general guidance only. Denise White Estate Agents has not tested any services, appliances or specific fittings — prospective purchasers are advised to inspect the property themselves. All fixtures, fittings and furniture not specifically itemised within these particulars are deemed removable by the vendor.
About Your Agent
"In a world where you can be anything, be kind"
Denise is the director of Denise White Estate agents and has worked in the local area since 1999. Denise and the team can help and advise with any information on the local property market and the local area.
Denise White Estate Agents deal with all aspects of property including residential sales and lettings.
Please do get in touch with us if you need any help or advise.
Property To Sell?
We can arrange an appointment that is convenient with yourself, we'll view your property and give you an informed FREE market appraisal and arrange the next steps for you.
You Need A Solicitor!
A good conveyancing solicitor can make or break your moving experience – we’re happy to recommend or get a quote for you, so that when the times comes, you’re ready to go.
Do You Require A Mortgage?
Speak to us, we'd be more than happy to point you in the direction of a reputable adviser who works closely with ourselves.
WE WON!
Denise White Bespoke Estate Agents has been honoured with the esteemed Gold Award for two years running; 2024 & 2025 from the British Property Awards for their exceptional customer service and extensive local marketing knowledge in Leek and its surrounding areas.
The British Property Awards, renowned for their inclusivity and comprehensive evaluation process, assess estate agents across the United Kingdom based on their customer service levels and understanding of the local market. Denise White Estate Agents demonstrated outstanding performance throughout the rigorous and independent judging period.
Additionally the team have been successful in receiving the GOLD EXCEPTIONAL award from the British Estate Agency Guide 2025 & 2025 and being listed as one of the Top 500 Estate Agents in the UK.
The Best Estate Agency Guide assess data such as the time taken from listing as for sale to sale agreed, achieving the asking price vs the achieved price, market share of properties available, positive reviews and much more!
Anti-Money Laundering & ID Checks
Once an offer is accepted on a property marketed by Denise White Estate Agents we are required to complete ID verification checks on all buyers and to apply ongoing monitoring until the transaction ends. Whilst this is the responsibility of Denise White Estate Agents we may use the services of Guild365, to verify Clients’ identity. This is not a credit check and therefore will have no effect on your credit history. You agree for us to complete these checks, and the cost of these checks is £30.00 inc. VAT per buyer. This is paid in advance, when an offer is agreed and prior to a sales memorandum being issued. This charge is non-refundable.
Viewing
Please contact us on 01538 381772 if you wish to arrange a viewing appointment for this property, or require further information.
Disclaimer
Denise White Estate Agents - ST13 endeavour to maintain accurate depictions of properties in Virtual Tours, Floor Plans and descriptions, however, these are intended only as a guide and purchasers must satisfy themselves by personal inspection.

