- Three Well-Proportioned Double Bedrooms
- Linked Detached Family Home In Established Residential Area
- Spacious Front-Facing Kitchen With Ample Worktop And Storage Space
- Versatile Study/Home Office With Direct Access To Driveway
- Comfortable Lounge Diner With Log Burner And Garden Access
- Downstairs WC For Added Convenience
- Family Bathroom Serving All Bedrooms
- Enclosed Rear Garden With Patio Seating Area And Lawn
- Garage With Useful Loft Room Offering Additional Flexible Space
- Generous Off-Road Parking For Multiple Vehicles
Full Description
CALL US TO ARRANGE A VIEWING 9AM - 9PM 7 DAYS A WEEK!“Where calm mornings meet open skies, and every evening settles softly into home.”A well-proportioned three-bedroom linked detached home offering flexible living space throughout. Featuring a spacious front-facing kitchen, versatile study with external access, and a cosy lounge diner with log burner opening onto the rear garden. Upstairs hosts three double bedrooms and a family bathroom. Externally, the property benefits from ample off-road parking, a garage with useful loft room, and a private rear garden with patio and lawn—ideal for modern family living.
Denise White Agent Comments
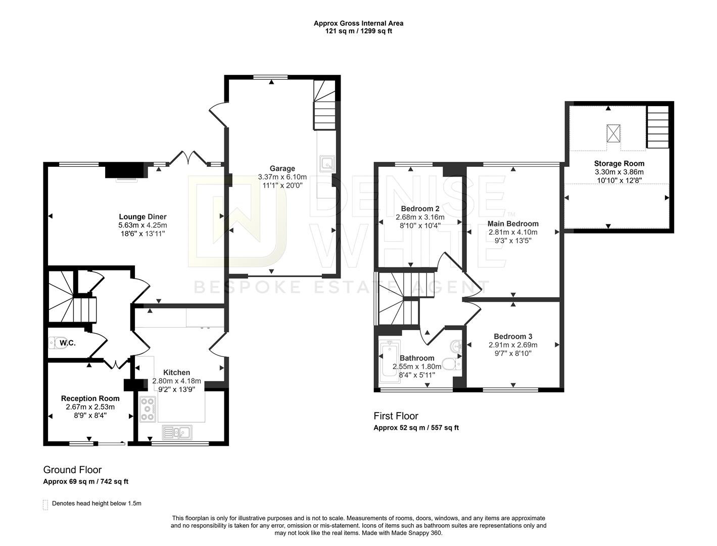
This well-presented three-bedroom linked detached property located on a corner plot on the sought after Boucher Road offers spacious and versatile accommodation, ideally suited to modern family living.
Upon entering the property, you are welcomed directly into a generously sized kitchen, thoughtfully arranged and enjoying views over the front aspect. The kitchen provides ample space for both preparation and informal dining.
Leading through to the inner hall, you gain access to a versatile office/study, complete with sliding doors opening onto the front driveway—ideal for those working from home or seeking a flexible reception space. The inner hall also provides access to a convenient downstairs WC.
To the rear of the property, the lounge diner serves as a warm and inviting living space, featuring a charming log burner and double doors that open out onto the rear garden, creating a seamless indoor-outdoor flow.
Upstairs, the property offers three well-proportioned double bedrooms, along with a family bathroom, providing comfortable accommodation for growing families.
Externally, the property continues to impress. To the front, there is off-road parking for up to three vehicles. A detached garage provides additional storage and includes a useful loft room, offering excellent potential for a variety of uses such as a home gym, hobby room, or workspace.
The rear garden features a patio area ideal for entertaining, alongside a well-maintained lawn, creating a pleasant outdoor space to enjoy.
This property combines practical living space with flexible features, making it an excellent opportunity in a desirable residential location.
Location
Situated in the popular village of Cheddleton in a well established residential area within easy travelling distance to the market town of Leek and Stoke-on Trent. Cheddleton provides easy access to some stunning countryside, ideal for people wanting to enjoy the all the countryside has to offer.
Cheddleton is a small village located in the Staffordshire Moorlands district of Staffordshire, England. The village is situated on the banks of the River Churnet and is surrounded by beautiful countryside. Cheddleton is known for its historic buildings, including the 13th-century St. Edward's Church and the Cheddleton Flint Mill, which dates back to the 18th century.
The village has a strong community spirit and is home to a number of local businesses, including a convenience store, and several pubs and a restaurant. Cheddleton is also home to a number of community groups and organizations, including a cricket club, and a history society. The village hosts a number of events throughout the year.
Enjoy the village's picturesque setting and historic attractions. The village is also a popular for walks and hikes in the surrounding countryside, including the Churnet Valley Way, and walks that follow the Caldon Canal through the Staffordshire Moorlands.
Kitchen (4.18 x 2.80 (13'8" x 9'2"))
Fitted with a range of wall and base units with work surfaces over incorporating a double stainless steel sink unit, integrated dishwasher, gas hob and oven. Plumbing for washing machine. Space for fridge freezer. Wood effect flooring. Composite door to the side aspect. uPVC window to the front aspect. Inset Spotlights.
Office/Study (2.76 x 2.66 (9'0" x 8'8"))
Carpet. Radiator. uPVC sliding doors to the front aspect. Inset Spotlights.
Inner Hall
Carpet. Radiator. Stairs leading up to 1st floor accommodation. Inset Spotlights. Doors leading into: –
WC (1.24 x 0.90 ( 4'0" x 2'11"))
Vinyl flooring. Low-level WC. Ceiling light.
Lounge (5.67 x 4.30 (18'7" x 14'1"))
Carpet. Radiators. Log burner. uPVC double doors leading to garden. uPVC window to the rear aspect. Wall lights. Ceiling lights.
First Floor Landing
Carpet. uPVC window to the side aspect. Inset spotlights. Loft access. Doors leading into: –
Bedroom One (4.33 x 2.94 (14'2" x 9'7" ))
Carpet. Radiator. uPVC window to the rear aspect. Inset spotlights.
Bedroom Two (3.22 x 2.66 (10'6" x 8'8" ))
Carpet. Radiator. uPVC window to the rear aspect. Inset Spotlights.
Bedroom Three (2.77 x 2.86 (9'1" x 9'4" ))
Carpet. Radiator. uPVC window to the front aspect. Inset Spotlights.
Bathroom (2.63 x 1.85 ( 8'7" x 6'0" ))
Fitted with a Suite comprising of, low-level WC, vanity wash hand basin, bath with rainfall shower over. Vinyl flooring. Heated towel rail. Radiator. Obscured uPVC window. Inset spotlights.
Outside
To the front of the property, there is a driveway providing off-road parking for multiple vehicles, along with access to the garage and a defined frontage bordered by hedging.
Garage (5.98 x 3.41 (19'7" x 11'2" ))
Plumbing for washing machines. Sink unit. Radiator. Fitted with an air conditioning unit. Roller shutter doors. Stair access to the loft storage space. Inset spotlights. uPVC obscured window to the rear aspect.
Garage Loft Room (3.86 x 3.30 (12'7" x 10'9"))
Boarded for storage. Velux window. Ceiling light.
Garden
To the rear, there is a patio area directly outside the property, suitable for outdoor seating, with steps leading up to a lawned garden. The garden is enclosed and offers a practical outdoor space for general use.
Agent Notes
Tenure: Freehold
Services: All mains services connected
Council Tax: Staffordshire Moorlands Band C
Please Note
Please note that all areas, measurements and distances given in these particulars are approximate and rounded. The text, photographs and floor plans are for general guidance only. Denise White Estate Agents has not tested any services, appliances or specific fittings — prospective purchasers are advised to inspect the property themselves. All fixtures, fittings and furniture not specifically itemised within these particulars are deemed removable by the vendor.
About Your Agent
"In a world where you can be anything, be kind"
Denise is the director of Denise White Estate agents and has worked in the local area since 1999. Denise and the team can help and advise with any information on the local property market and the local area.
Denise White Estate Agents deal with all aspects of property including residential sales and lettings.
Please do get in touch with us if you need any help or advise.
Property To Sell?
We can arrange an appointment that is convenient with yourself, we'll view your property and give you an informed FREE market appraisal and arrange the next steps for you.
Need A Mortgage?
Speak to us, we'd be more than happy to point you in the direction of a reputable adviser who works closely with ourselves.
You Will Need A Solicitor!
A good conveyancing solicitor can make or break your moving experience – we’re happy to recommend or get a quote for you, so that when the times comes, you’re ready to go.
We Won!!!
Denise White Bespoke Estate Agents has been honoured with the esteemed Gold Award for two years running; 2024 & 2025 from the British Property Awards for their exceptional customer service and extensive local marketing knowledge in Leek and its surrounding areas.
The British Property Awards, renowned for their inclusivity and comprehensive evaluation process, assess estate agents across the United Kingdom based on their customer service levels and understanding of the local market. Denise White Estate Agents demonstrated outstanding performance throughout the rigorous and independent judging period.
Additionally the team have been successful in receiving the GOLD EXCEPTIONAL award from the British Estate Agency Guide 2025 & 2025 and being listed as one of the Top 500 Estate Agents in the UK.
The Best Estate Agency Guide assess data such as the time taken from listing as for sale to sale agreed, achieving the asking price vs the achieved price, market share of properties available, positive reviews and much more!
Buyer ID Checks
Once an offer is accepted on a property marketed by Denise White Estate Agents we are required to complete ID verification checks on all buyers and to apply ongoing monitoring until the transaction ends. Whilst this is the responsibility of Denise White Estate Agents we may use the services of Guild365, to verify Clients’ identity. This is not a credit check and therefore will have no effect on your credit history. You agree for us to complete these checks, and the cost of these checks is £30.00 inc. VAT per buyer. This is paid in advance, when an offer is agreed and prior to a sales memorandum being issued. This charge is non-refundable.
Viewing
Please contact us on 01538 381772 if you wish to arrange a viewing appointment for this property, or require further information.
Energy Performance Certificate
Click here to view the Energy Efficiency Rating and Environmental Impact Rating for this property.
Disclaimer
Denise White Estate Agents - ST13 endeavour to maintain accurate depictions of properties in Virtual Tours, Floor Plans and descriptions, however, these are intended only as a guide and purchasers must satisfy themselves by personal inspection.
Denise White Agent Comments
This well-presented three-bedroom linked detached property located on a corner plot on the sought after Boucher Road offers spacious and versatile accommodation, ideally suited to modern family living.
Upon entering the property, you are welcomed directly into a generously sized kitchen, thoughtfully arranged and enjoying views over the front aspect. The kitchen provides ample space for both preparation and informal dining.
Leading through to the inner hall, you gain access to a versatile office/study, complete with sliding doors opening onto the front driveway—ideal for those working from home or seeking a flexible reception space. The inner hall also provides access to a convenient downstairs WC.
To the rear of the property, the lounge diner serves as a warm and inviting living space, featuring a charming log burner and double doors that open out onto the rear garden, creating a seamless indoor-outdoor flow.
Upstairs, the property offers three well-proportioned double bedrooms, along with a family bathroom, providing comfortable accommodation for growing families.
Externally, the property continues to impress. To the front, there is off-road parking for up to three vehicles. A detached garage provides additional storage and includes a useful loft room, offering excellent potential for a variety of uses such as a home gym, hobby room, or workspace.
The rear garden features a patio area ideal for entertaining, alongside a well-maintained lawn, creating a pleasant outdoor space to enjoy.
This property combines practical living space with flexible features, making it an excellent opportunity in a desirable residential location.
Location
Situated in the popular village of Cheddleton in a well established residential area within easy travelling distance to the market town of Leek and Stoke-on Trent. Cheddleton provides easy access to some stunning countryside, ideal for people wanting to enjoy the all the countryside has to offer.
Cheddleton is a small village located in the Staffordshire Moorlands district of Staffordshire, England. The village is situated on the banks of the River Churnet and is surrounded by beautiful countryside. Cheddleton is known for its historic buildings, including the 13th-century St. Edward's Church and the Cheddleton Flint Mill, which dates back to the 18th century.
The village has a strong community spirit and is home to a number of local businesses, including a convenience store, and several pubs and a restaurant. Cheddleton is also home to a number of community groups and organizations, including a cricket club, and a history society. The village hosts a number of events throughout the year.
Enjoy the village's picturesque setting and historic attractions. The village is also a popular for walks and hikes in the surrounding countryside, including the Churnet Valley Way, and walks that follow the Caldon Canal through the Staffordshire Moorlands.
Kitchen (4.18 x 2.80 (13'8" x 9'2"))
Fitted with a range of wall and base units with work surfaces over incorporating a double stainless steel sink unit, integrated dishwasher, gas hob and oven. Plumbing for washing machine. Space for fridge freezer. Wood effect flooring. Composite door to the side aspect. uPVC window to the front aspect. Inset Spotlights.
Office/Study (2.76 x 2.66 (9'0" x 8'8"))
Carpet. Radiator. uPVC sliding doors to the front aspect. Inset Spotlights.
Inner Hall
Carpet. Radiator. Stairs leading up to 1st floor accommodation. Inset Spotlights. Doors leading into: –
WC (1.24 x 0.90 ( 4'0" x 2'11"))
Vinyl flooring. Low-level WC. Ceiling light.
Lounge (5.67 x 4.30 (18'7" x 14'1"))
Carpet. Radiators. Log burner. uPVC double doors leading to garden. uPVC window to the rear aspect. Wall lights. Ceiling lights.
First Floor Landing
Carpet. uPVC window to the side aspect. Inset spotlights. Loft access. Doors leading into: –
Bedroom One (4.33 x 2.94 (14'2" x 9'7" ))
Carpet. Radiator. uPVC window to the rear aspect. Inset spotlights.
Bedroom Two (3.22 x 2.66 (10'6" x 8'8" ))
Carpet. Radiator. uPVC window to the rear aspect. Inset Spotlights.
Bedroom Three (2.77 x 2.86 (9'1" x 9'4" ))
Carpet. Radiator. uPVC window to the front aspect. Inset Spotlights.
Bathroom (2.63 x 1.85 ( 8'7" x 6'0" ))
Fitted with a Suite comprising of, low-level WC, vanity wash hand basin, bath with rainfall shower over. Vinyl flooring. Heated towel rail. Radiator. Obscured uPVC window. Inset spotlights.
Outside
To the front of the property, there is a driveway providing off-road parking for multiple vehicles, along with access to the garage and a defined frontage bordered by hedging.
Garage (5.98 x 3.41 (19'7" x 11'2" ))
Plumbing for washing machines. Sink unit. Radiator. Fitted with an air conditioning unit. Roller shutter doors. Stair access to the loft storage space. Inset spotlights. uPVC obscured window to the rear aspect.
Garage Loft Room (3.86 x 3.30 (12'7" x 10'9"))
Boarded for storage. Velux window. Ceiling light.
Garden
To the rear, there is a patio area directly outside the property, suitable for outdoor seating, with steps leading up to a lawned garden. The garden is enclosed and offers a practical outdoor space for general use.
Agent Notes
Tenure: Freehold
Services: All mains services connected
Council Tax: Staffordshire Moorlands Band C
Please Note
Please note that all areas, measurements and distances given in these particulars are approximate and rounded. The text, photographs and floor plans are for general guidance only. Denise White Estate Agents has not tested any services, appliances or specific fittings — prospective purchasers are advised to inspect the property themselves. All fixtures, fittings and furniture not specifically itemised within these particulars are deemed removable by the vendor.
About Your Agent
"In a world where you can be anything, be kind"
Denise is the director of Denise White Estate agents and has worked in the local area since 1999. Denise and the team can help and advise with any information on the local property market and the local area.
Denise White Estate Agents deal with all aspects of property including residential sales and lettings.
Please do get in touch with us if you need any help or advise.
Property To Sell?
We can arrange an appointment that is convenient with yourself, we'll view your property and give you an informed FREE market appraisal and arrange the next steps for you.
Need A Mortgage?
Speak to us, we'd be more than happy to point you in the direction of a reputable adviser who works closely with ourselves.
You Will Need A Solicitor!
A good conveyancing solicitor can make or break your moving experience – we’re happy to recommend or get a quote for you, so that when the times comes, you’re ready to go.
We Won!!!
Denise White Bespoke Estate Agents has been honoured with the esteemed Gold Award for two years running; 2024 & 2025 from the British Property Awards for their exceptional customer service and extensive local marketing knowledge in Leek and its surrounding areas.
The British Property Awards, renowned for their inclusivity and comprehensive evaluation process, assess estate agents across the United Kingdom based on their customer service levels and understanding of the local market. Denise White Estate Agents demonstrated outstanding performance throughout the rigorous and independent judging period.
Additionally the team have been successful in receiving the GOLD EXCEPTIONAL award from the British Estate Agency Guide 2025 & 2025 and being listed as one of the Top 500 Estate Agents in the UK.
The Best Estate Agency Guide assess data such as the time taken from listing as for sale to sale agreed, achieving the asking price vs the achieved price, market share of properties available, positive reviews and much more!
Buyer ID Checks
Once an offer is accepted on a property marketed by Denise White Estate Agents we are required to complete ID verification checks on all buyers and to apply ongoing monitoring until the transaction ends. Whilst this is the responsibility of Denise White Estate Agents we may use the services of Guild365, to verify Clients’ identity. This is not a credit check and therefore will have no effect on your credit history. You agree for us to complete these checks, and the cost of these checks is £30.00 inc. VAT per buyer. This is paid in advance, when an offer is agreed and prior to a sales memorandum being issued. This charge is non-refundable.
Viewing
Please contact us on 01538 381772 if you wish to arrange a viewing appointment for this property, or require further information.
Energy Performance Certificate
Click here to view the Energy Efficiency Rating and Environmental Impact Rating for this property.
Disclaimer
Denise White Estate Agents - ST13 endeavour to maintain accurate depictions of properties in Virtual Tours, Floor Plans and descriptions, however, these are intended only as a guide and purchasers must satisfy themselves by personal inspection.

