- Sought-After Village Location In Endon
- Private Driveway Providing Ample Off Road Parking and Integral Single Garage
- Entrance Porch And Hallway With Minton Tiled Flooring
- Fully Fitted Kitchen With Granite Work Surfaces And Belfast Sink
- Open-Plan Lounge And Dining Room
- Log Burner And Bay Window To Front Aspect
- Conservatory And Separate Utility Room
- Principal Bedroom With Dressing Area And En-Suite
- Rear Garden Which Also Includes Garden Room Currently Arranged As A Bar
- Viewing Essential!
Full Description
CALL US TO ARRANGE A VIEWING 9AM - 9PM 7 DAYS A WEEK!"A Home Should Be A Treasure Chest Of Living"A well-presented three-bedroom semi-detached home in the popular village of Endon. The property features an entrance porch and hallway with Minton tiled flooring, a downstairs WC, and a fully fitted kitchen with granite work surfaces and Belfast sink, opening into the lounge and dining room. The spacious lounge boasts a log burner and bay window, while the dining room has double doors to the garden, plus a utility room and conservatory. Upstairs offers a family bathroom, two generous bedrooms with fitted wardrobes, and a principal bedroom with dressing area and en-suite.
Denise White Estate Agents Comments
This beautifully presented three-bedroom semi-detached home is situated in the sought-after village of Endon and offers generous, well-planned accommodation throughout. The property benefits from a private driveway to the front providing ample off-road parking, along with an attractive rear garden.
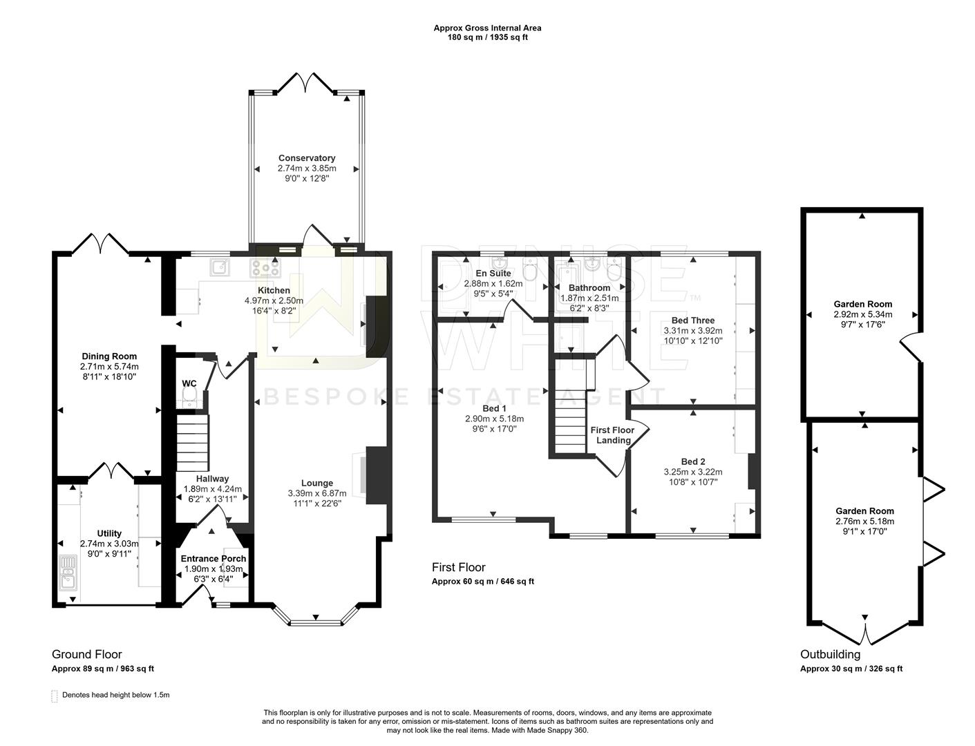
Upon entering the property, you are welcomed into an entrance porch featuring fitted storage cupboards and attractive Minton tiled flooring, which then leads into the main entrance hallway, again benefiting from Minton tiled flooring and providing access to a convenient downstairs WC. From here, the hallway opens into the fully fitted kitchen, finished with granite work surfaces incorporating a Belfast sink unit with mixer tap. The kitchen enjoys an open-plan layout with the lounge and dining room, creating an ideal space for modern family living, and also provides access into the conservatory.
The lounge is a generously sized room, boasting a feature log burner and a bay window to the front aspect, allowing plenty of natural light. The dining room is equally spacious and benefits from double doors opening onto the rear garden, as well as access into the utility room, which offers additional fitted storage.
To the first floor, the property offers a well-appointed family bathroom, along with bedrooms two and three, both generous in size and benefiting from fitted wardrobes. The principal bedroom is a particular highlight, featuring a dressing area upon entry which leads through to the main bedroom space and further onto a private en-suite shower room.
Externally, therer is a driveway providing ample off road parking to the front aspect, which in turn leads to an integral single garge. There is also an electric car charging point. To the rear, there is an excellent sized private and enclosed garden which has been well maintained and includes a versatile outbuilding which comprises of a garden room, currently arranged as a bar, making it ideal for entertaining or relaxing, together with a useful garden store.
This impressive home combines character features with practical living space and is ideally suited to families or those seeking a well-proportioned property in a desirable location.
Location
Endon is a village within the Staffordshire Moorlands district of Staffordshire, It is 4 miles southwest of Leek and 6 miles north-northeast of Stoke-on-Trent. Together with neighbouring Stanley, Endon forms the civil parish of Endon and Stanley. The village boasts three popular schools; St. Luke's Church of England Primary School, Endon Hall Primary School and Endon High School, as well as a selection of village stores, a thriving village hall, popular local pub serving a highly rated carvery, and with a stylish cocktail bar and restaurant just a short drive (or pleasant stroll) down the road in Stockton Brook. The Caldon Canal also runs through Endon, offering pleasant rural walks through the Staffordshire Moorland Countryside.
Entrance porch
Minton tiled flooring. Built-in storage cupboards. Access into entrance hallway. Inset Spotlights.
Entrance Hall
Minton tiled flooring. Wall mounted radiator. Access to WC. Stair access leading to first floor landing. Ceiling light.
WC
Tiled flooring. WC. Ceiling light.
Kitchen (5.15 x 2.49 (16'10" x 8'2"))
Fitted with a range of wall and base units with granite work surfaces over incorporating a Belfast sink unit with mixer tap. Integrated fridge freezer, four ring Gas hob with extractor over and single electric oven. Space for dishwasher. Open Plan access into lounge. Brick fireplace. Access into dining room and conservatory. Tiled flooring. Inset spotlights. uPVC double glazed windows to the rear aspect.
Lounge (6.66 x 3.39 (21'10" x 11'1"))
Fitted carpet. Wall mounted radiator. Fireplace with log burner. UPVC double glazed Bay window to the front aspect. Inset spotlights.
Conservatory (4.13 x 3.11 (13'6" x 10'2"))
Fitted carpet. Wall mounted radiator. Double doors leading to outside. Access into kitchen.
Dining Room (6.12 x 2.76 (20'0" x 9'0"))
Tiled flooring. Wall mounted radiator. UPVC double doors leading to outside. Access into utility. Inset Spotlights.
Utility Room (3.08 x 2.15 (10'1" x 7'0"))
Tiled flooring. Fitted with a range of wall and base units. Plumbing for washing machine. Space for dryer. Stainless steel drainer style sink unit. Inset spotlights.
First Floor Landing
Fitted carpet. Wall mounted radiator. Access to all first floor accommodation. Ceiling light. Doors leading into:-
Bedroom One (5.17 x 2.93 extending to 5.03 (16'11" x 9'7" exten)
Laminate flooring. Fitted carpet. Wall mounted radiators. UPVC double glazed Windows to the front aspect. Access to en suite. Inset spotlights.
En Suite (2.92 x 1.64 (9'6" x 5'4"))
Tiled flooring. WC. Vanity style wash hand basin. Walk-in shower. Rain style shower. Obscured UPVC double glazed window. Inset spotlights.
Bedroom two (3.88 x 2.79 (12'8" x 9'1"))
Fitted carpet. Wall mounted radiator. UPVC double glazed window to the rear aspect. Fitted wardrobes. Inset spotlights.
Bedroom three (3.30 x 2.72 (10'9" x 8'11"))
Laminate flooring. Wall mounted radiator. Fitted wardrobes. UPVC double glazed windows to the front aspect. Inset spotlights.
Bathroom (2.49 x 1.90 (8'2" x 6'2"))
Tiled flooring. WC. Wash hand basin. Bath. Shower cubicle. Obscured UPVC double glazed window. Inset spotlights.
Outside
To the front, there is a generous gravelled driveway providing ample off-road parking, along with the added convenience of an electric car charging point. The frontage offers excellent kerb appeal and a good degree of privacy. Gated access to the side leads to the rear garden.
Rear Garden
To the rear, the garden has been thoughtfully landscaped to create a low-maintenance yet highly usable outdoor space, featuring a paved patio ideal for entertaining and a neat lawned area beyond. A real standout feature is the detached garden room, which is superbly presented and currently arranged as a stylish bar and social space, making it perfect for entertaining, relaxing, or hosting friends and family. Behind the garden room, there is also a useful garden store with power and light. The garden is enclosed and well screened, offering a private and enjoyable setting throughout the year.
Garden Room (5.18 x 2.76 (16'11" x 9'0"))
Tiled flooring. Electric storage heater. UPVC french doors to the front aspect. Bifold doors to the side aspect. Inset spotlights.
Garden Store (5.34 x 2.92 (17'6" x 9'6"))
Pedestrain door providing access from the rear garden. Power and light.
Agent Notes
Tenure: Freehold
Services: All mains services connected
Council Tax: Staffordshire Moorlands Band C
Please Note
Please note that all areas, measurements and distances given in these particulars are approximate and rounded. The text, photographs and floor plans are for general guidance only. Denise White Estate Agents has not tested any services, appliances or specific fittings — prospective purchasers are advised to inspect the property themselves. All fixtures, fittings and furniture not specifically itemised within these particulars are deemed removable by the vendor.
About Your Agent
"In a world where you can be anything, be kind"
Denise is the director of Denise White Estate agents and has worked in the local area since 1999. Denise and the team can help and advise with any information on the local property market and the local area.
Denise White Estate Agents deal with all aspects of property including residential sales and lettings.
Please do get in touch with us if you need any help or advise.
Property To Sell Or Rent?
We can arrange an appointment that is convenient with yourself, we'll view your property and give you an informed FREE market appraisal and arrange the next steps for you.
You Will Need A Solicitor!
A good conveyancing solicitor can make or break your moving experience – we’re happy to recommend or get a quote for you, so that when the times comes, you’re ready to go.
Need A Mortgage Advisor?
Speak to us, we'd be more than happy to point you in the direction of a reputable adviser who works closely with ourselves.
We Won!!!
Denise White Bespoke Estate Agents has been honoured with the esteemed Gold Award for two years running; 2024 & 2025 from the British Property Awards for their exceptional customer service and extensive local marketing knowledge in Leek and its surrounding areas.
The British Property Awards, renowned for their inclusivity and comprehensive evaluation process, assess estate agents across the United Kingdom based on their customer service levels and understanding of the local market. Denise White Estate Agents demonstrated outstanding performance throughout the rigorous and independent judging period.
Additionally the team have been successful in receiving the GOLD EXCEPTIONAL award from the British Estate Agency Guide 2025 & 2025 and being listed as one of the Top 500 Estate Agents in the UK.
The Best Estate Agency Guide assess data such as the time taken from listing as for sale to sale agreed, achieving the asking price vs the achieved price, market share of properties available, positive reviews and much more!
Anti-Money Laundering & ID Checks
Once an offer is accepted on a property marketed by Denise White Estate Agents we are required to complete ID verification checks on all buyers and to apply ongoing monitoring until the transaction ends. Whilst this is the responsibility of Denise White Estate Agents we may use the services of Guild365, to verify Clients’ identity. This is not a credit check and therefore will have no effect on your credit history. You agree for us to complete these checks, and the cost of these checks is £30.00 inc. VAT per buyer. This is paid in advance, when an offer is agreed and prior to a sales memorandum being issued. This charge is non-refundable.
Viewing
Please contact us on 01538 381772 if you wish to arrange a viewing appointment for this property, or require further information.
Energy Performance Certificate
Click here to view the Energy Efficiency Rating and Environmental Impact Rating for this property.
Disclaimer
Denise White Estate Agents - ST13 endeavour to maintain accurate depictions of properties in Virtual Tours, Floor Plans and descriptions, however, these are intended only as a guide and purchasers must satisfy themselves by personal inspection.
Denise White Estate Agents Comments
This beautifully presented three-bedroom semi-detached home is situated in the sought-after village of Endon and offers generous, well-planned accommodation throughout. The property benefits from a private driveway to the front providing ample off-road parking, along with an attractive rear garden.
Upon entering the property, you are welcomed into an entrance porch featuring fitted storage cupboards and attractive Minton tiled flooring, which then leads into the main entrance hallway, again benefiting from Minton tiled flooring and providing access to a convenient downstairs WC. From here, the hallway opens into the fully fitted kitchen, finished with granite work surfaces incorporating a Belfast sink unit with mixer tap. The kitchen enjoys an open-plan layout with the lounge and dining room, creating an ideal space for modern family living, and also provides access into the conservatory.
The lounge is a generously sized room, boasting a feature log burner and a bay window to the front aspect, allowing plenty of natural light. The dining room is equally spacious and benefits from double doors opening onto the rear garden, as well as access into the utility room, which offers additional fitted storage.
To the first floor, the property offers a well-appointed family bathroom, along with bedrooms two and three, both generous in size and benefiting from fitted wardrobes. The principal bedroom is a particular highlight, featuring a dressing area upon entry which leads through to the main bedroom space and further onto a private en-suite shower room.
Externally, therer is a driveway providing ample off road parking to the front aspect, which in turn leads to an integral single garge. There is also an electric car charging point. To the rear, there is an excellent sized private and enclosed garden which has been well maintained and includes a versatile outbuilding which comprises of a garden room, currently arranged as a bar, making it ideal for entertaining or relaxing, together with a useful garden store.
This impressive home combines character features with practical living space and is ideally suited to families or those seeking a well-proportioned property in a desirable location.
Location
Endon is a village within the Staffordshire Moorlands district of Staffordshire, It is 4 miles southwest of Leek and 6 miles north-northeast of Stoke-on-Trent. Together with neighbouring Stanley, Endon forms the civil parish of Endon and Stanley. The village boasts three popular schools; St. Luke's Church of England Primary School, Endon Hall Primary School and Endon High School, as well as a selection of village stores, a thriving village hall, popular local pub serving a highly rated carvery, and with a stylish cocktail bar and restaurant just a short drive (or pleasant stroll) down the road in Stockton Brook. The Caldon Canal also runs through Endon, offering pleasant rural walks through the Staffordshire Moorland Countryside.
Entrance porch
Minton tiled flooring. Built-in storage cupboards. Access into entrance hallway. Inset Spotlights.
Entrance Hall
Minton tiled flooring. Wall mounted radiator. Access to WC. Stair access leading to first floor landing. Ceiling light.
WC
Tiled flooring. WC. Ceiling light.
Kitchen (5.15 x 2.49 (16'10" x 8'2"))
Fitted with a range of wall and base units with granite work surfaces over incorporating a Belfast sink unit with mixer tap. Integrated fridge freezer, four ring Gas hob with extractor over and single electric oven. Space for dishwasher. Open Plan access into lounge. Brick fireplace. Access into dining room and conservatory. Tiled flooring. Inset spotlights. uPVC double glazed windows to the rear aspect.
Lounge (6.66 x 3.39 (21'10" x 11'1"))
Fitted carpet. Wall mounted radiator. Fireplace with log burner. UPVC double glazed Bay window to the front aspect. Inset spotlights.
Conservatory (4.13 x 3.11 (13'6" x 10'2"))
Fitted carpet. Wall mounted radiator. Double doors leading to outside. Access into kitchen.
Dining Room (6.12 x 2.76 (20'0" x 9'0"))
Tiled flooring. Wall mounted radiator. UPVC double doors leading to outside. Access into utility. Inset Spotlights.
Utility Room (3.08 x 2.15 (10'1" x 7'0"))
Tiled flooring. Fitted with a range of wall and base units. Plumbing for washing machine. Space for dryer. Stainless steel drainer style sink unit. Inset spotlights.
First Floor Landing
Fitted carpet. Wall mounted radiator. Access to all first floor accommodation. Ceiling light. Doors leading into:-
Bedroom One (5.17 x 2.93 extending to 5.03 (16'11" x 9'7" exten)
Laminate flooring. Fitted carpet. Wall mounted radiators. UPVC double glazed Windows to the front aspect. Access to en suite. Inset spotlights.
En Suite (2.92 x 1.64 (9'6" x 5'4"))
Tiled flooring. WC. Vanity style wash hand basin. Walk-in shower. Rain style shower. Obscured UPVC double glazed window. Inset spotlights.
Bedroom two (3.88 x 2.79 (12'8" x 9'1"))
Fitted carpet. Wall mounted radiator. UPVC double glazed window to the rear aspect. Fitted wardrobes. Inset spotlights.
Bedroom three (3.30 x 2.72 (10'9" x 8'11"))
Laminate flooring. Wall mounted radiator. Fitted wardrobes. UPVC double glazed windows to the front aspect. Inset spotlights.
Bathroom (2.49 x 1.90 (8'2" x 6'2"))
Tiled flooring. WC. Wash hand basin. Bath. Shower cubicle. Obscured UPVC double glazed window. Inset spotlights.
Outside
To the front, there is a generous gravelled driveway providing ample off-road parking, along with the added convenience of an electric car charging point. The frontage offers excellent kerb appeal and a good degree of privacy. Gated access to the side leads to the rear garden.
Rear Garden
To the rear, the garden has been thoughtfully landscaped to create a low-maintenance yet highly usable outdoor space, featuring a paved patio ideal for entertaining and a neat lawned area beyond. A real standout feature is the detached garden room, which is superbly presented and currently arranged as a stylish bar and social space, making it perfect for entertaining, relaxing, or hosting friends and family. Behind the garden room, there is also a useful garden store with power and light. The garden is enclosed and well screened, offering a private and enjoyable setting throughout the year.
Garden Room (5.18 x 2.76 (16'11" x 9'0"))
Tiled flooring. Electric storage heater. UPVC french doors to the front aspect. Bifold doors to the side aspect. Inset spotlights.
Garden Store (5.34 x 2.92 (17'6" x 9'6"))
Pedestrain door providing access from the rear garden. Power and light.
Agent Notes
Tenure: Freehold
Services: All mains services connected
Council Tax: Staffordshire Moorlands Band C
Please Note
Please note that all areas, measurements and distances given in these particulars are approximate and rounded. The text, photographs and floor plans are for general guidance only. Denise White Estate Agents has not tested any services, appliances or specific fittings — prospective purchasers are advised to inspect the property themselves. All fixtures, fittings and furniture not specifically itemised within these particulars are deemed removable by the vendor.
About Your Agent
"In a world where you can be anything, be kind"
Denise is the director of Denise White Estate agents and has worked in the local area since 1999. Denise and the team can help and advise with any information on the local property market and the local area.
Denise White Estate Agents deal with all aspects of property including residential sales and lettings.
Please do get in touch with us if you need any help or advise.
Property To Sell Or Rent?
We can arrange an appointment that is convenient with yourself, we'll view your property and give you an informed FREE market appraisal and arrange the next steps for you.
You Will Need A Solicitor!
A good conveyancing solicitor can make or break your moving experience – we’re happy to recommend or get a quote for you, so that when the times comes, you’re ready to go.
Need A Mortgage Advisor?
Speak to us, we'd be more than happy to point you in the direction of a reputable adviser who works closely with ourselves.
We Won!!!
Denise White Bespoke Estate Agents has been honoured with the esteemed Gold Award for two years running; 2024 & 2025 from the British Property Awards for their exceptional customer service and extensive local marketing knowledge in Leek and its surrounding areas.
The British Property Awards, renowned for their inclusivity and comprehensive evaluation process, assess estate agents across the United Kingdom based on their customer service levels and understanding of the local market. Denise White Estate Agents demonstrated outstanding performance throughout the rigorous and independent judging period.
Additionally the team have been successful in receiving the GOLD EXCEPTIONAL award from the British Estate Agency Guide 2025 & 2025 and being listed as one of the Top 500 Estate Agents in the UK.
The Best Estate Agency Guide assess data such as the time taken from listing as for sale to sale agreed, achieving the asking price vs the achieved price, market share of properties available, positive reviews and much more!
Anti-Money Laundering & ID Checks
Once an offer is accepted on a property marketed by Denise White Estate Agents we are required to complete ID verification checks on all buyers and to apply ongoing monitoring until the transaction ends. Whilst this is the responsibility of Denise White Estate Agents we may use the services of Guild365, to verify Clients’ identity. This is not a credit check and therefore will have no effect on your credit history. You agree for us to complete these checks, and the cost of these checks is £30.00 inc. VAT per buyer. This is paid in advance, when an offer is agreed and prior to a sales memorandum being issued. This charge is non-refundable.
Viewing
Please contact us on 01538 381772 if you wish to arrange a viewing appointment for this property, or require further information.
Energy Performance Certificate
Click here to view the Energy Efficiency Rating and Environmental Impact Rating for this property.
Disclaimer
Denise White Estate Agents - ST13 endeavour to maintain accurate depictions of properties in Virtual Tours, Floor Plans and descriptions, however, these are intended only as a guide and purchasers must satisfy themselves by personal inspection.

