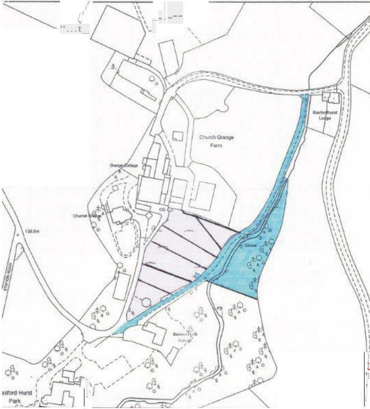
- Six Plots available to purchase
- Available from £90,000 to £125,000
- The whole site is available for £500,000
- Application reference SMD/2008/1104
- The site situated in a prime position within some stunning countryside
- Also just a 5 minute drive from the historic market town of Leek
- Situated on the outskirts of the village of Cheddleton, Staffordshire
- Approximately the site is set in, approx, 2.67 Acres
Full Description
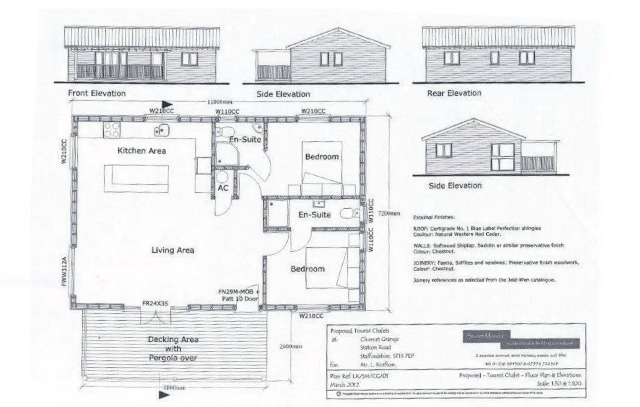
Planning permission is approved for SIX, two bedroom, two bathroom, timber chalets for holiday accommodation which are FREEHOLD. Approximately the site is set in 2.67 Acres. Planning has been granted by Staffordshire Moorlands District Council, under application reference SMD/2008/1104
Denise White Estate Agent Comments
Planning permission is approved for SIX, two bedroom, two bathroom, timber chalets for holiday accommodation which are FREEHOLD. Approximately the site is set in 2.67 Acres.
Planning has been granted by Staffordshire Moorlands District Council, under application reference SMD/2008/1104
The footings and bases are all erected and the shell of one of lodges are in place.
Hoeseasons are keen on taking on the letting of the finished lodges which would yield a high double digit annual income
This is a rare opportunity for a freehold site.
Churnet Grange is located in a prime position on the outskirts of the popular village of Cheddleton, within easy travelling distance to the market town of Leek, Staffordshire.
Setting The Scene
The site situated in a prime position within some stunning countryside. The site is just a 5 minute drive from the historic market town of Leek.
The location is perfect to create the harmonious lifestyle that the idyllic image of owning your own country lodge portrays. Stepping out onto your private patio and into the relaxation of the woodland surrounding, enabling you just to unwind as you take in the fresh moorland air and revitalise as you take a stroll into the Churnet Valley.
Out and About
Much of Cheddleton straddles the A520 immediately to the south of the river Churnet and the Caldon Canal, the site is situated within walking distance to the canal and steam railway line, on the edge of the village of Cheddleton. The Staffordshire village of Cheddleton is situated in the Staffordshire Moorlands, three miles from the market town of Leek. The village offers shops, a Post Office, pubs serving food and a restaurant. Nearby Leek boasts shops including vast antique emporiums, bookshops and galleries, along with restaurants and real ale pubs.
Please Note
All interested parties are advised to make their own enquiries in this regard to any planning queries.
Denise White Estate Agents will only be selling the plot and then the legal transactions for the Lodges will be done direct with the owner.
Please note that all areas, measurements and distances given in these particulars are approximate and rounded. The text, photographs and floor plans are for general guidance only. Denise White Estate Agents has not tested any services, appliances or specific fittings — prospective purchasers are advised to inspect the property themselves. All fixtures, fittings and furniture not specifically itemised within these particulars are deemed removable by the vendor. Please note - the vendors could have a change of mind in terms of fixtures and fittings and all will be confirmed via the solicitors fixture and fittings forms.
About Your Agent
Denise is the director of Denise White Estate agents and has worked in the local area since 1999. Denise and the team all live locally and can help and advise with any information on the local property market and the local area.
Denise White Estate Agents deal with all aspects of property including residential sales and lettings.
Please do get in touch with us if you need any help or advise
Viewing
Please contact us on 01538 381772 if you wish to arrange a viewing appointment for this property, or require further information.
Disclaimer
Denise White Estate Agents - ST13 endeavour to maintain accurate depictions of properties in Virtual Tours, Floor Plans and descriptions, however, these are intended only as a guide and purchasers must satisfy themselves by personal inspection.
Denise White Estate Agent Comments
Planning permission is approved for SIX, two bedroom, two bathroom, timber chalets for holiday accommodation which are FREEHOLD. Approximately the site is set in 2.67 Acres.
Planning has been granted by Staffordshire Moorlands District Council, under application reference SMD/2008/1104
The footings and bases are all erected and the shell of one of lodges are in place.
Hoeseasons are keen on taking on the letting of the finished lodges which would yield a high double digit annual income
This is a rare opportunity for a freehold site.
Churnet Grange is located in a prime position on the outskirts of the popular village of Cheddleton, within easy travelling distance to the market town of Leek, Staffordshire.
Setting The Scene
The site situated in a prime position within some stunning countryside. The site is just a 5 minute drive from the historic market town of Leek.
The location is perfect to create the harmonious lifestyle that the idyllic image of owning your own country lodge portrays. Stepping out onto your private patio and into the relaxation of the woodland surrounding, enabling you just to unwind as you take in the fresh moorland air and revitalise as you take a stroll into the Churnet Valley.
Out and About
Much of Cheddleton straddles the A520 immediately to the south of the river Churnet and the Caldon Canal, the site is situated within walking distance to the canal and steam railway line, on the edge of the village of Cheddleton. The Staffordshire village of Cheddleton is situated in the Staffordshire Moorlands, three miles from the market town of Leek. The village offers shops, a Post Office, pubs serving food and a restaurant. Nearby Leek boasts shops including vast antique emporiums, bookshops and galleries, along with restaurants and real ale pubs.
Please Note
All interested parties are advised to make their own enquiries in this regard to any planning queries.
Denise White Estate Agents will only be selling the plot and then the legal transactions for the Lodges will be done direct with the owner.
Please note that all areas, measurements and distances given in these particulars are approximate and rounded. The text, photographs and floor plans are for general guidance only. Denise White Estate Agents has not tested any services, appliances or specific fittings — prospective purchasers are advised to inspect the property themselves. All fixtures, fittings and furniture not specifically itemised within these particulars are deemed removable by the vendor. Please note - the vendors could have a change of mind in terms of fixtures and fittings and all will be confirmed via the solicitors fixture and fittings forms.
About Your Agent
Denise is the director of Denise White Estate agents and has worked in the local area since 1999. Denise and the team all live locally and can help and advise with any information on the local property market and the local area.
Denise White Estate Agents deal with all aspects of property including residential sales and lettings.
Please do get in touch with us if you need any help or advise
Viewing
Please contact us on 01538 381772 if you wish to arrange a viewing appointment for this property, or require further information.
Disclaimer
Denise White Estate Agents - ST13 endeavour to maintain accurate depictions of properties in Virtual Tours, Floor Plans and descriptions, however, these are intended only as a guide and purchasers must satisfy themselves by personal inspection.

