Full Description
"In Harmony," this delightful property resonates beautifully with its history and surroundings, featuring elegantly designed interiors and a bespoke extension that offers stunning views of the breathtaking gardens. This detached stone home perfectly enhances its enchanting character and serene environment. With approximately 3 acres of land, plus it's expansive gardens, stables, and an arena, makes it an ideal haven for equestrian enthusiasts!
Denise White Estate Agent's Comments
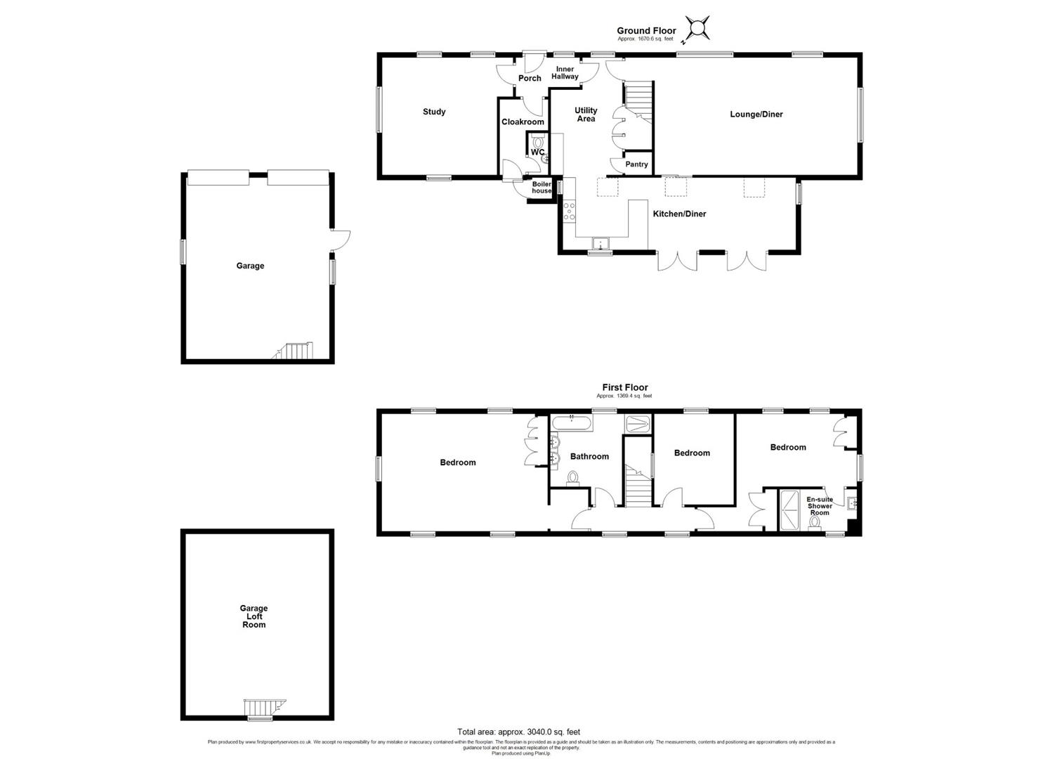
Harracles Mill Cottage is an exquisite two-storey barn conversion that offers versatile accommodation in a stunning rural setting. This impressive home, formed from former outbuildings and extended to enhance its charm, features a detached double garage, beautiful gardens, extensive parking, stabling, and a 20m x 40m arena, all set within, approximately 3 acres of land plus the gardens.
The accommodation is spread over two floors and includes oil central heating and underfloor heating in the extension, alongside quality double-glazed windows that maintain the character of the original structure. Original features such as exposed beams and stone mullion windows add to the property’s appeal.
The ground floor comprises a tiled corridor leading to an open-plan dining area and a sitting room, which connects to a vaulted kitchen dining/garden room equipped with bespoke kitchen units and a Rangemaster-style cooker. French doors open to the rear courtyard and garden. Additionally, there's a versatile breakfast room, a spacious lounge, a boot room, and a ground floor cloakroom.
The first floor houses three bedrooms and a family bathroom. The main bedroom includes a modern en-suite with a walk-in shower, while the second bedroom is generously sized and could be divided or accommodate an en suite. The third bedroom also offers ample space, sharing the family bathroom with a bath, double wash basins, W.C. and a separate shower cubicle.
The property features two driveways, one with gated access leading to hardstanding for several vehicles and direct access to the land, and another leading to the double garage. The garage has potential for conversion into additional accommodation, ideal for dependent relatives, subject to planning consent.
The formal gardens encompass well-maintained lawn areas, established trees, raised beds, and a variety of flowering plants and shrubs. The paddock areas facilitate easy rotation for grazing animals, complemented by a stable block with two stables and a tack/feed/storage room, leading to the well-drained 20m x 40m arena. Gated access from the country road ensures convenience for horseboxes and larger equipment.
Harracles Mill Cottage presents a unique opportunity for those seeking a blend of character, versatility, and equestrian potential in a stunning location.
Location
Rudyard is a particularly pretty lakeside village where Rudyard Lake provides some of the most dramatic scenery to be found in the Staffordshire Moorlands. The Lake covers some 168 acres and is over 2.5 miles long.
Rudyard is located in the county of Staffordshire, West Midlands, three miles north-west of the town of Leek, eight miles north-east of the major city of Stoke-on-Trent and lies three miles east of the Cheshire border with Macclesfield approximately 10 miles away.
The house has the most beautiful views and is only a short walk away from Hotel Rudyard which is lakeside hotel with stunning gardens and views providing family dining and a great Sunday carvery. The Roaches and the Peak District National Park can be reached in 10 minutes. The surrounding area is ideal for scenic walks.
The Property
Welcome to Harracles Mill Cottage.......
Entrance Hallway
Access into the main accommodation and stairs leading off to the first floor accommodation. With exposed stone design tiled flooring, Access to the lounge, boot room/rear porch and the open plan dining and sitting room.
Sitting Room with Dining Area (7.81 x 4.68 (25'7" x 15'4" ))
This stunning open plan dining and sitting room features a seamless division framed by exposed oak beams, offering both a clear delineation of space and versatile functionality.
Sitting Room (4.68 x 4.67 (15'4" x 15'3"))
The sitting room has windows on both the side and front aspects, enhanced by charming exposed stone mullions and oak beams above. The warm ambiance is complemented by two radiators and strategically placed wall lights, while the exposed wooden oak flooring flows gracefully into the dining area. There is a multi fuel fire sat on a raised hearth with exposed beam over. An internal window looks into the garden room
Dining Area (4.68 x 3.15 (15'4" x 10'4"))
The exposed oak flooring continues from the sitting room into the dining room. Windows to the front aspect, also divided by stone mullions, provide the area with natural light. Additional features include a radiator and wall lights that enhance the inviting atmosphere. The space is completed with a stable-style sliding door, providing direct access to the open plan dining kitchen, making it perfect for entertaining and family gatherings.
Open Plan Kitchen with Dining Area (9.18 max x 2.83 (30'1" max x 9'3" ))
This property features a stunning open-plan kitchen diner that seamlessly connects to the sitting and dining room.
Dining Area (2.83 x 5.85 (9'3" x 19'2"))
The dining space, also known as the garden room, offers magnificent views of the gardens towards the gardens and is enhanced by two sets of double-glazed French doors and two double-glazed windows on the side. The vaulted-style ceiling, adorned with exposed beams, is complemented by four central ceiling lights and two skylights, allowing for ample natural light. The light-colored stone-style flooring, paired with matching skirting, creates a cohesive look and is equipped with underfloor heating. An oak step leads up to the dining area, which opens into the living quarters, while a tiled step leads to the slightly elevated kitchen area.
Open Plan Kitchen Area (3.85 x 2.85 (12'7" x 9'4"))
The kitchen boasts a bespoke design featuring an extensive range of wall and base units, complemented by a Belfast sink unit with a central tap. Double-glazed windows provide a picturesque view of the rear garden, enhancing the space with natural light. The kitchen is equipped with a stylish range master-style cooker, complete with an extractor hood, and an integrated dishwasher for convenience. Granite work surfaces add a touch of elegance, while an additional double-glazed window on the side offer further illumination. A skylight and central lighting fixtures enhance the overall brightness of the kitchen and exposed beams that contribute to the character of the vaulted ceiling. There is exposed stone designed tiled flooring. This area overlooks the dining/garden room, creating a seamless flow into the open-plan breakfast room.
Breakfast Room (4.63 x 2.81 (15'2" x 9'2"))
This generous space continues with the stone designed tiled flooring and includes bespoke cabinetry that provides ample storage with wooden work surfaces. The exposed beams extend to the ceiling and walls, complemented by ceiling lights and a radiator. A double-glazed window at the front adds to the charm, framed by an exposed beam overhead. Access to the open-plan sitting room and dining room, as well as the front entrance hall.
Boot Area/Rear Hallway (1.78 max x 3.06 (5'10" max x 10'0" ))
The rear porch/boot room continues the theme of exposed stone tiled flooring and includes a radiator, ceiling light, and a stable-style door leading directly outside. This area provides convenient access to the ground floor cloakroom.
Ground Floor Cloakroom (1.12 x 1.77 (3'8" x 5'9"))
The ground floor cloakroom is practical and modern, housing a WC, radiator, wash hand basin, and ceiling light, all featuring the continuation of the stone design tiled flooring.
Lounge (4.70 x 5.15 max narrowing to 4.51 (15'5" x 16'10")
The spacious lounge is a great size family room featuring a fitted carpet, radiators, and wall lights, complemented by exposed beams. Natural light floods the room through windows positioned at the front, rear, and side aspects. A focal point of the room is a multi-fuel fire framed by an exposed beam mantle.
First Floor Accommodation
On the first floor, the landing has a fitted carpet and provides access to three well-appointed bedrooms and a family bathroom. A window overlooking the rear garden and exposed beam detailing adds character, while an internal window above the staircase offers a glimpse into bedroom three, framed by exposed stone. The landing is illuminated by a ceiling light and additional wall lights.
Bedroom One (4.63 x 4.70 max naroowing to 2.90 (15'2" x 15'5" m)
This spacious double bedroom has a fitted carpet, two windows facing the front, which not only flood the room with natural light but also the sills can be used as charming window seats. The room is enhanced by exposed beams that add character and a rustic touch. An additional side window with a stone mullion divider further complements the ambiance. For convenience, there is a fitted wardrobe with drawers and storage above, as well as a radiator to ensure a cosy environment. Access to the en-suite shower room makes this room functional for many buyers.
En-Suite (3.08 x 1.66 (10'1" x 5'5"))
The en-suite bathroom is a modern suite, equipped with a double shower featuring glass doors for a contemporary touch. It includes a WC and a stylish vanity wash hand basin with storage underneath., The space has a radiator and exposed wooden-style flooring. A window is located to the rear aspect with an exposed beam overhead, allows for natural light. Inset spotlights provide additional illumination.
Bedroom Two (6.61 x 4.67 (21'8" x 15'3"))
This is a generously sized room and presents the opportunity to be divided into two separate bedrooms or to add an ensuite. Currently utilised as a large bedroom, it features windows on the front, rear, and side aspects, radiators, inset spotlighting, and a fitted double wardrobe with extra drawers and storage over, loft access.
Bedroom Three (3.64 x 3.08 (11'11" x 10'1"))
Another generously sized double bedroom, Bedroom three features a fitted carpet , an internal window overlooking the stairs, framed by a distinctive exposed stone feature, adding a unique architectural element. The room includes a wall light and a radiator.
Family Bathroom (3.62 x 3.18 (11'10" x 10'5"))
The family bathroom impresses with its excellent size providing a great floorplan. It includes a bath with a shower attachment. The "his and hers" sink unit comes with a fitted wall mirror above, ideal for morning routines. A walk-in shower cubicle adds convenience for family use. The room features part-tiled walls and tiled flooring with electric under floor heating, A heated towel rail ensures comfort, while a storage cupboard with alcove shelving offers practical storage solution. An exposed beam overhead adds character, and a window to the front aspect, complete with an exposed beam above, allows for natural light. An extractor fan and loft access finalise the room.
Outside
The property is approached via a country lane and leads to a private road off that provides access to the property and one other dwelling. There are double gates that lead to the side of the property where you will find ample hardstanding for parking and stone flagged area with gated access to the land and to the rear of the house. There is an additional driveway to the other side of the house which provides parking that leads directly to the double garage. The double garage measures - 7.16m x 5.58 m with remote controlled electric garage doors. There is gated access to the rear of the garden.
Gardens
The rear garden is a standout feature of the property, offering an excellent size with a lush lawn adorned with an array of flowers, shrubs, and mature trees. A substantial stone-flagged patio area runs alongside the rear of the house, providing ample seating space for outdoor dining and relaxation while overlooking the garden. There is access to the rear garden from both side aspects of the house and you will find with a stone outbuilding, outdoor tap and an oil tank shielded by stone walling. Central steps lead down to the rear garden area. There is also access gained from the rear garden to the double garage. The Gardens are believed to extend to 0.23 acres (Approximate measurement)
Land
Behind the property lies additional land, split into paddock areas ideal for grazing or equestrian use. Gated access from the country road leads directly to this land, which includes two substantial stables with an adjacent tack room for storage of equipment and hay. The paddocks are designed for easy management, and the property features a purpose-built 20x20 arena that boasts adequate drainage and a well-maintained surface, suitable for various equestrian activities. There is also a field shelter.
The paddocks are approximately 2.99 acres with the stable field approximately 0.39 acres.
Arena and Stables
The Arena measures 20m x 40m. Surface - Sand and Rubber.
The Stables Footprint is approximately 1350 sq feet - 125.48 sq meters
Agents Notes
Freehold
Oil Central Heating System
Septic Tank Drainage
Under Floor Heating System in the open plan kitchen/dining room
2019 - New hardwood double glazed windows throughout
2019 - New roof (whole house)
2020 - CCTV (all around house)
2024 - New oil boiler
Please note that the vendor of the property is a relative of a member of staff who works for Denise White Estate Agents
Please Note ......
Please note that all areas, measurements and distances given in these particulars are approximate and rounded. The text, photographs and floor plans are for general guidance only. Denise White Estate Agents has not tested any services, appliances or specific fittings — prospective purchasers are advised to inspect the property themselves. All fixtures, fittings and furniture not specifically itemised within these particulars are deemed removable by the vendor.
About Your Agent
"In a world where you can be anything, be kind"
Denise is the director of Denise White Estate agents and has worked in the local area since 1999. Denise and the team can help and advise with any information on the local property market and the local area.
Denise White Estate Agents deal with all aspects of property including residential sales and lettings.
Please do get in touch with us if you need any help or advise
What3words
https://what3words.com/strongman.mystified.still
strongman.mystified.still
The simplest way to talk about location
What is what3words
Divided the world into 3 metre squares and gave each square a unique combination of three words. It’s the easiest way to find and share exact locations.
WE WON !!!
Local Estate Agent Wins Prestigious British Gold Award for Customer Service
Denise White Bespoke Estate Agents has been honored with the esteemed Gold Award 2024 from the British Property Awards for their exceptional customer service and extensive local marketing knowledge in Leek and its surrounding areas.
The British Property Awards, renowned for their inclusivity and comprehensive evaluation process, assess estate agents across the United Kingdom based on their customer service levels and understanding of the local market. Denise White Estate Agents demonstrated outstanding performance throughout the rigorous and independent judging period.
As part of the assessment, the British Property Awards mystery shopped 90% of estate agents nationwide, evaluating their telephone etiquette, responsiveness to emails, promptness in returning missed calls, and, crucially, their expertise in the local marketing area.
The Gold Award is a testament to the estate agents who consistently go above and beyond, delivering exceptional levels of customer service, focusing on their commitment and excellence within the local community.
Property To Sell or Rent ?
We can arrange an appointment that is convenient with yourself, we'll view your property and give you an informed FREE market appraisal and arrange the next steps for you.
Do You Need A Mortgage ?
Speak to us, we'd be more than happy to point you in the direction of a reputable adviser who works closely with ourselves.
You Need A Solicitor !
A good conveyancing solicitor can make or break your moving experience – we’re happy to recommend or get a quote for you, so that when the times comes, you’re ready to go.
Viewing
Please contact us on 01538 381772 if you wish to arrange a viewing appointment for this property, or require further information.
Energy Performance Certificate
Click here to view the Energy Efficiency Rating and Environmental Impact Rating for this property.
Disclaimer
Denise White Estate Agents - ST13 endeavour to maintain accurate depictions of properties in Virtual Tours, Floor Plans and descriptions, however, these are intended only as a guide and purchasers must satisfy themselves by personal inspection.
Denise White Estate Agent's Comments
Harracles Mill Cottage is an exquisite two-storey barn conversion that offers versatile accommodation in a stunning rural setting. This impressive home, formed from former outbuildings and extended to enhance its charm, features a detached double garage, beautiful gardens, extensive parking, stabling, and a 20m x 40m arena, all set within, approximately 3 acres of land plus the gardens.
The accommodation is spread over two floors and includes oil central heating and underfloor heating in the extension, alongside quality double-glazed windows that maintain the character of the original structure. Original features such as exposed beams and stone mullion windows add to the property’s appeal.
The ground floor comprises a tiled corridor leading to an open-plan dining area and a sitting room, which connects to a vaulted kitchen dining/garden room equipped with bespoke kitchen units and a Rangemaster-style cooker. French doors open to the rear courtyard and garden. Additionally, there's a versatile breakfast room, a spacious lounge, a boot room, and a ground floor cloakroom.
The first floor houses three bedrooms and a family bathroom. The main bedroom includes a modern en-suite with a walk-in shower, while the second bedroom is generously sized and could be divided or accommodate an en suite. The third bedroom also offers ample space, sharing the family bathroom with a bath, double wash basins, W.C. and a separate shower cubicle.
The property features two driveways, one with gated access leading to hardstanding for several vehicles and direct access to the land, and another leading to the double garage. The garage has potential for conversion into additional accommodation, ideal for dependent relatives, subject to planning consent.
The formal gardens encompass well-maintained lawn areas, established trees, raised beds, and a variety of flowering plants and shrubs. The paddock areas facilitate easy rotation for grazing animals, complemented by a stable block with two stables and a tack/feed/storage room, leading to the well-drained 20m x 40m arena. Gated access from the country road ensures convenience for horseboxes and larger equipment.
Harracles Mill Cottage presents a unique opportunity for those seeking a blend of character, versatility, and equestrian potential in a stunning location.
Location
Rudyard is a particularly pretty lakeside village where Rudyard Lake provides some of the most dramatic scenery to be found in the Staffordshire Moorlands. The Lake covers some 168 acres and is over 2.5 miles long.
Rudyard is located in the county of Staffordshire, West Midlands, three miles north-west of the town of Leek, eight miles north-east of the major city of Stoke-on-Trent and lies three miles east of the Cheshire border with Macclesfield approximately 10 miles away.
The house has the most beautiful views and is only a short walk away from Hotel Rudyard which is lakeside hotel with stunning gardens and views providing family dining and a great Sunday carvery. The Roaches and the Peak District National Park can be reached in 10 minutes. The surrounding area is ideal for scenic walks.
The Property
Welcome to Harracles Mill Cottage.......
Entrance Hallway
Access into the main accommodation and stairs leading off to the first floor accommodation. With exposed stone design tiled flooring, Access to the lounge, boot room/rear porch and the open plan dining and sitting room.
Sitting Room with Dining Area (7.81 x 4.68 (25'7" x 15'4" ))
This stunning open plan dining and sitting room features a seamless division framed by exposed oak beams, offering both a clear delineation of space and versatile functionality.
Sitting Room (4.68 x 4.67 (15'4" x 15'3"))
The sitting room has windows on both the side and front aspects, enhanced by charming exposed stone mullions and oak beams above. The warm ambiance is complemented by two radiators and strategically placed wall lights, while the exposed wooden oak flooring flows gracefully into the dining area. There is a multi fuel fire sat on a raised hearth with exposed beam over. An internal window looks into the garden room
Dining Area (4.68 x 3.15 (15'4" x 10'4"))
The exposed oak flooring continues from the sitting room into the dining room. Windows to the front aspect, also divided by stone mullions, provide the area with natural light. Additional features include a radiator and wall lights that enhance the inviting atmosphere. The space is completed with a stable-style sliding door, providing direct access to the open plan dining kitchen, making it perfect for entertaining and family gatherings.
Open Plan Kitchen with Dining Area (9.18 max x 2.83 (30'1" max x 9'3" ))
This property features a stunning open-plan kitchen diner that seamlessly connects to the sitting and dining room.
Dining Area (2.83 x 5.85 (9'3" x 19'2"))
The dining space, also known as the garden room, offers magnificent views of the gardens towards the gardens and is enhanced by two sets of double-glazed French doors and two double-glazed windows on the side. The vaulted-style ceiling, adorned with exposed beams, is complemented by four central ceiling lights and two skylights, allowing for ample natural light. The light-colored stone-style flooring, paired with matching skirting, creates a cohesive look and is equipped with underfloor heating. An oak step leads up to the dining area, which opens into the living quarters, while a tiled step leads to the slightly elevated kitchen area.
Open Plan Kitchen Area (3.85 x 2.85 (12'7" x 9'4"))
The kitchen boasts a bespoke design featuring an extensive range of wall and base units, complemented by a Belfast sink unit with a central tap. Double-glazed windows provide a picturesque view of the rear garden, enhancing the space with natural light. The kitchen is equipped with a stylish range master-style cooker, complete with an extractor hood, and an integrated dishwasher for convenience. Granite work surfaces add a touch of elegance, while an additional double-glazed window on the side offer further illumination. A skylight and central lighting fixtures enhance the overall brightness of the kitchen and exposed beams that contribute to the character of the vaulted ceiling. There is exposed stone designed tiled flooring. This area overlooks the dining/garden room, creating a seamless flow into the open-plan breakfast room.
Breakfast Room (4.63 x 2.81 (15'2" x 9'2"))
This generous space continues with the stone designed tiled flooring and includes bespoke cabinetry that provides ample storage with wooden work surfaces. The exposed beams extend to the ceiling and walls, complemented by ceiling lights and a radiator. A double-glazed window at the front adds to the charm, framed by an exposed beam overhead. Access to the open-plan sitting room and dining room, as well as the front entrance hall.
Boot Area/Rear Hallway (1.78 max x 3.06 (5'10" max x 10'0" ))
The rear porch/boot room continues the theme of exposed stone tiled flooring and includes a radiator, ceiling light, and a stable-style door leading directly outside. This area provides convenient access to the ground floor cloakroom.
Ground Floor Cloakroom (1.12 x 1.77 (3'8" x 5'9"))
The ground floor cloakroom is practical and modern, housing a WC, radiator, wash hand basin, and ceiling light, all featuring the continuation of the stone design tiled flooring.
Lounge (4.70 x 5.15 max narrowing to 4.51 (15'5" x 16'10")
The spacious lounge is a great size family room featuring a fitted carpet, radiators, and wall lights, complemented by exposed beams. Natural light floods the room through windows positioned at the front, rear, and side aspects. A focal point of the room is a multi-fuel fire framed by an exposed beam mantle.
First Floor Accommodation
On the first floor, the landing has a fitted carpet and provides access to three well-appointed bedrooms and a family bathroom. A window overlooking the rear garden and exposed beam detailing adds character, while an internal window above the staircase offers a glimpse into bedroom three, framed by exposed stone. The landing is illuminated by a ceiling light and additional wall lights.
Bedroom One (4.63 x 4.70 max naroowing to 2.90 (15'2" x 15'5" m)
This spacious double bedroom has a fitted carpet, two windows facing the front, which not only flood the room with natural light but also the sills can be used as charming window seats. The room is enhanced by exposed beams that add character and a rustic touch. An additional side window with a stone mullion divider further complements the ambiance. For convenience, there is a fitted wardrobe with drawers and storage above, as well as a radiator to ensure a cosy environment. Access to the en-suite shower room makes this room functional for many buyers.
En-Suite (3.08 x 1.66 (10'1" x 5'5"))
The en-suite bathroom is a modern suite, equipped with a double shower featuring glass doors for a contemporary touch. It includes a WC and a stylish vanity wash hand basin with storage underneath., The space has a radiator and exposed wooden-style flooring. A window is located to the rear aspect with an exposed beam overhead, allows for natural light. Inset spotlights provide additional illumination.
Bedroom Two (6.61 x 4.67 (21'8" x 15'3"))
This is a generously sized room and presents the opportunity to be divided into two separate bedrooms or to add an ensuite. Currently utilised as a large bedroom, it features windows on the front, rear, and side aspects, radiators, inset spotlighting, and a fitted double wardrobe with extra drawers and storage over, loft access.
Bedroom Three (3.64 x 3.08 (11'11" x 10'1"))
Another generously sized double bedroom, Bedroom three features a fitted carpet , an internal window overlooking the stairs, framed by a distinctive exposed stone feature, adding a unique architectural element. The room includes a wall light and a radiator.
Family Bathroom (3.62 x 3.18 (11'10" x 10'5"))
The family bathroom impresses with its excellent size providing a great floorplan. It includes a bath with a shower attachment. The "his and hers" sink unit comes with a fitted wall mirror above, ideal for morning routines. A walk-in shower cubicle adds convenience for family use. The room features part-tiled walls and tiled flooring with electric under floor heating, A heated towel rail ensures comfort, while a storage cupboard with alcove shelving offers practical storage solution. An exposed beam overhead adds character, and a window to the front aspect, complete with an exposed beam above, allows for natural light. An extractor fan and loft access finalise the room.
Outside
The property is approached via a country lane and leads to a private road off that provides access to the property and one other dwelling. There are double gates that lead to the side of the property where you will find ample hardstanding for parking and stone flagged area with gated access to the land and to the rear of the house. There is an additional driveway to the other side of the house which provides parking that leads directly to the double garage. The double garage measures - 7.16m x 5.58 m with remote controlled electric garage doors. There is gated access to the rear of the garden.
Gardens
The rear garden is a standout feature of the property, offering an excellent size with a lush lawn adorned with an array of flowers, shrubs, and mature trees. A substantial stone-flagged patio area runs alongside the rear of the house, providing ample seating space for outdoor dining and relaxation while overlooking the garden. There is access to the rear garden from both side aspects of the house and you will find with a stone outbuilding, outdoor tap and an oil tank shielded by stone walling. Central steps lead down to the rear garden area. There is also access gained from the rear garden to the double garage. The Gardens are believed to extend to 0.23 acres (Approximate measurement)
Land
Behind the property lies additional land, split into paddock areas ideal for grazing or equestrian use. Gated access from the country road leads directly to this land, which includes two substantial stables with an adjacent tack room for storage of equipment and hay. The paddocks are designed for easy management, and the property features a purpose-built 20x20 arena that boasts adequate drainage and a well-maintained surface, suitable for various equestrian activities. There is also a field shelter.
The paddocks are approximately 2.99 acres with the stable field approximately 0.39 acres.
Arena and Stables
The Arena measures 20m x 40m. Surface - Sand and Rubber.
The Stables Footprint is approximately 1350 sq feet - 125.48 sq meters
Agents Notes
Freehold
Oil Central Heating System
Septic Tank Drainage
Under Floor Heating System in the open plan kitchen/dining room
2019 - New hardwood double glazed windows throughout
2019 - New roof (whole house)
2020 - CCTV (all around house)
2024 - New oil boiler
Please note that the vendor of the property is a relative of a member of staff who works for Denise White Estate Agents
Please Note ......
Please note that all areas, measurements and distances given in these particulars are approximate and rounded. The text, photographs and floor plans are for general guidance only. Denise White Estate Agents has not tested any services, appliances or specific fittings — prospective purchasers are advised to inspect the property themselves. All fixtures, fittings and furniture not specifically itemised within these particulars are deemed removable by the vendor.
About Your Agent
"In a world where you can be anything, be kind"
Denise is the director of Denise White Estate agents and has worked in the local area since 1999. Denise and the team can help and advise with any information on the local property market and the local area.
Denise White Estate Agents deal with all aspects of property including residential sales and lettings.
Please do get in touch with us if you need any help or advise
What3words
https://what3words.com/strongman.mystified.still
strongman.mystified.still
The simplest way to talk about location
What is what3words
Divided the world into 3 metre squares and gave each square a unique combination of three words. It’s the easiest way to find and share exact locations.
WE WON !!!
Local Estate Agent Wins Prestigious British Gold Award for Customer Service
Denise White Bespoke Estate Agents has been honored with the esteemed Gold Award 2024 from the British Property Awards for their exceptional customer service and extensive local marketing knowledge in Leek and its surrounding areas.
The British Property Awards, renowned for their inclusivity and comprehensive evaluation process, assess estate agents across the United Kingdom based on their customer service levels and understanding of the local market. Denise White Estate Agents demonstrated outstanding performance throughout the rigorous and independent judging period.
As part of the assessment, the British Property Awards mystery shopped 90% of estate agents nationwide, evaluating their telephone etiquette, responsiveness to emails, promptness in returning missed calls, and, crucially, their expertise in the local marketing area.
The Gold Award is a testament to the estate agents who consistently go above and beyond, delivering exceptional levels of customer service, focusing on their commitment and excellence within the local community.
Property To Sell or Rent ?
We can arrange an appointment that is convenient with yourself, we'll view your property and give you an informed FREE market appraisal and arrange the next steps for you.
Do You Need A Mortgage ?
Speak to us, we'd be more than happy to point you in the direction of a reputable adviser who works closely with ourselves.
You Need A Solicitor !
A good conveyancing solicitor can make or break your moving experience – we’re happy to recommend or get a quote for you, so that when the times comes, you’re ready to go.
Viewing
Please contact us on 01538 381772 if you wish to arrange a viewing appointment for this property, or require further information.
Energy Performance Certificate
Click here to view the Energy Efficiency Rating and Environmental Impact Rating for this property.
Disclaimer
Denise White Estate Agents - ST13 endeavour to maintain accurate depictions of properties in Virtual Tours, Floor Plans and descriptions, however, these are intended only as a guide and purchasers must satisfy themselves by personal inspection.

