- Executive Family Residence in a quiet cul-de-sac on the ever-popular Pickwood Estate
- Beautifully Extended Accommodation, perfectly suited to modern family living
- Quality Breakfast Kitchen finished with Granite Work Surfaces
- Sizeable Lounge with semi-vaulted ceiling and French Doors to the Garden
- Dining Room with contemporary log burning stove
- Utilty Room and Downstairs WC
- Four Bedrooms, Superb Ensuite Bathroom and Jack and Jill Shower Room
- Driveway for Two Vehicles and Integral Single Garage
- Low Maintenance Gardens
- Viewing ESSENTIAL!
Full Description
CALL US TO ARRANGE A VIEWING 9AM TO 9PM 7 DAYS A WEEK!"A residence created for modern lifestyles, with space to grow and evolve"An impressive executive four-bedroom detached family home, tucked away on a quiet cul-de-sac within the sought-after Pickwood Estate on the outskirts of Leek. Extended to the ground floor, it offers spacious open-plan living including a stylish breakfast kitchen, dining room with log burning stove, and a light-filled lounge with vaulted ceiling and French doors to the rear garden. The first floor provides four well-proportioned bedrooms, including a principal suite with Jack and Jill shower room and a superb en-suite to bedroom two. Externally, the property benefits from off-road parking, an integral garage, and low-maintenance gardens, all within easy reach of local amenities and Leek town centre.
Denise White Estate Agents Comments
Tucked away in a quiet cul-de-sac on the ever-popular Pickwood Estate, on the outskirts of the charming market town of Leek, this executive four-bedroom detached family residence offers beautifully extended accommodation, perfectly suited to modern family living. Thoughtfully enhanced to the ground floor, the property boasts spacious, open-plan and versatile interiors designed with both comfort and practicality in mind.
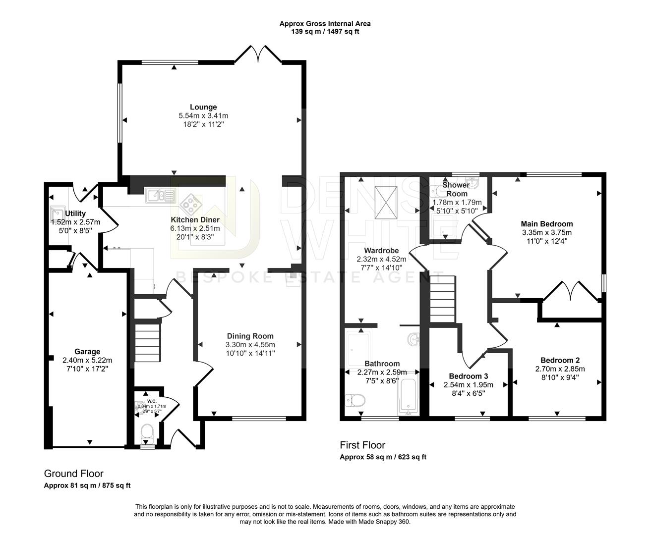
An inviting entrance hall welcomes you to the property, with stairs rising to the first floor and access to a useful downstairs WC, as well as the dining room and kitchen. To the front aspect, the dining room provides ample space for a family dining table and chairs, complemented by a contemporary log burning stove set upon a slate tiled hearth, creating a warm and cosy focal point. This space flows effortlessly into the breakfast kitchen, which is fitted with a range of quality units, granite work surfaces and a wooden breakfast bar—ideal for informal dining and entertaining.
The kitchen opens seamlessly into a generous lounge, a standout feature of the home, enhanced by a semi-vaulted ceiling with Velux windows that flood the space with natural light. French doors lead directly onto the rear garden, further enhancing the sense of space and indoor-outdoor living. A separate utility room sits just off the kitchen, providing additional practicality and access to both the rear garden and the integral garage.
To the first floor, the property continues to impress. The principal bedroom enjoys a pleasant rear aspect and benefits from a large built-in wardrobe, along with access to a Jack and Jill shower room. Bedroom two spans the full depth of the property and opens into a superb en-suite bathroom, featuring a walk-in shower with rainfall head and a luxurious double-ended bath. Bedroom three is positioned to the front and also benefits from a built-in wardrobe, while a fourth single bedroom offers flexibility as a child’s room, nursery or home office.
Externally, the property enjoys a driveway providing off-road parking for two vehicles, alongside well-maintained and easily managed front and rear gardens. Perfectly positioned, the home sits just moments from Pickwood Recreation Ground and within easy walking distance of Leek town centre, with its excellent range of shops, schools, and amenities—perfect for families seeking space, style and a highly desirable location.
Location
Known as the 'Queen of the Staffordshire Moorlands', Leek is a former textile town with a long and fascinating history.
The unspoilt town centre offers a refreshing alternative to from modern shopping malls and has a wealth of independent shops, including former silk mills housing antique and reproduction pine centres, as well as traditional and contemporary furnishings.
Delicious local produce can be found in abundance at traditional butchers, bakers, greengrocers, delicatessens and cafes. Leek is also home to speciality producers of condiments, confectionery, preserves, wine, whisky, craft beers and the traditional Staffordshire oatcake.
raditional markets abound, both indoors in the beautifully restored Victorian Butter Market and outdoors in the Market Place, offering everything from general goods, antiques and collectables to fine foods and special 'Totally Locally' Sunday markets. And when it comes to wining and dining, you can choose from a tempting selection of cafés, real ale pubs and restaurants.
Further afield, you'll find the unique, tooth-like rock formations of The Roaches, Rudyard Lake with its picturesque setting and narrow gauge railway and Tittesworth Water, a popular and accessible attraction for visitors of all ages.
Entrance Hall
Composite entrance door to the front aspect. Tiled flooring. Radiator. Stairs off leading to the first floor with under stair storage. Ceiling light. Doors leading into:–
WC (1.75 x 0.85 (5'8" x 2'9"))
Fitted with a low-level WC and wall mounted wash hand basin. Tiled flooring. Radiator. Obscured uPVC window to the front aspect. Ceiling light.
Dining Room (4.54 x 3.33 (14'10" x 10'11"))
Laminate flooring. Radiator. uPVC window to the front aspect. Fitted with a log burning stove set on a slate hearth. Ceiling light. Opening into:–
Breakfast Kitchen (6.35 x 2.62 extending to 3.43 (20'9" x 8'7" extend)
Fitted with a range of wall and base units with granite works surfaces over incorporating an inset 'Franke' stainless steel sink with hose mixer tap. Integrated four ring induction hob with extractor over, double electric oven, microwave, dishwasher and fridge freezer drawers. Partial tiled and partial laminate flooring. Radiator. Ceiling light and spotlights. Door leading to the utility room. Opening into:–
Lounge (5.59 x 3.43 (18'4" x 11'3"))
Carpet. Radiator. uPVC French doors leading to the rear garden. uPVC windows to the side and rear aspects. Two velux windows. Two ceiling lights.
Utility Room (2.63 x 1.52 (8'7" x 4'11"))
Fitted with wall and base units with worksurfaces over incorporating a circular stainless steel sink with mixer tap. Plumbing for automatic washing machine. Space for a condensing tumble dryer. Tiled flooring. Radiator. Storage cupboard off housing the 'Baxi' combination boiler. uPVC door leading to the rear garden. Ceiling light. Door leading to the integral garage.
First Floor Landing
Carpet. Radiator. Ceiling light. Loft access. Doors leading into:-
Bedroom One (3.77 x 3.41 (12'4" x 11'2"))
Carpet. Radiator. uPVC windows to the front and side aspects. Large built-in wardrobe with hanging rail, shelf and inset light. Ceiling spotlights. Door leading into:-
Jack and Jill Shower Room (1.82 x 1.79 (5'11" x 5'10"))
With a suite comprising of back to wall WC, wall mounted vanity wash hand basin and shower cubicle with rainfall showerhead. Tiled flooring. Part tiled walls. Wall mounted heated towel rail. Obscured uPVC window to the rear aspect. Ceiling spotlights. Door leading to the landing.
Bedroom Two (4.61 x 2.32 (15'1" x 7'7"))
Carpet. Radiator. Velux window to the rear aspect. Wall light. Feature exposed brick wall. Ceiling light. Opening into:–
En-suite Bathroom (2.68 x 2.30 (8'9" x 7'6"))
Fitted with a suite comprising of double ended bath with central mixer tap, walk-in shower with rainfall showerhead, low-level WC and wall mounted wash hand basin. Tiled flooring. Part tiled walls. Obscured uPVC window to the front aspect. Ceiling spotlights. Feature exposed brick wall.
Bedroom Three (2.70 extending to 3.40 max x 2.89 (8'10" extending)
Carpet. Radiator. uPVC window to the front aspect. Built-in wardrobe off. Ceiling light.
Bedroom Four (2.00 extending to 2.79 max x 2.57 (6'6" extending)
Carpet. Radiator. uPVC window to the front aspect. Ceiling spotlights.
Outside
To the front of the property there is a tarmac driveway providing off road parking for two vehicles and leading to an integral single garage. Alongside the driveway there is a small lawned garden area and a pathway leading through gated access at the side, to the rear garden.
Integral Garage (5.40 x 2.51 (17'8" x 8'2"))
Remote controlled electric up and over door to the front aspect. Power and light. Internal door leading to the utility room.
Garden
To the rear of the property there is a private and enclosed garden comprising of a paved patio seating area and lawn, designed with practicality and easy-maintenance in mind, providing the perfect space for alfresco dining and entertaining, as well as a safe and secure environment in which children can play and pets can roam freely.
Agents Notes
** Please note; the vendors of this property are related to a member of staff at Denise White Estate Agents **
Tenure: Freehold
Services: All mains services connected
Council Tax: Staffordshire Moorlands Band E
No chain involved with the sale
Please Note
Please note that all areas, measurements and distances given in these particulars are approximate and rounded. The text, photographs and floor plans are for general guidance only. Denise White Estate Agents has not tested any services, appliances or specific fittings — prospective purchasers are advised to inspect the property themselves. All fixtures, fittings and furniture not specifically itemised within these particulars are deemed removable by the vendor.
About Your Agent
"In a world where you can be anything, be kind"
Denise is the director of Denise White Estate agents and has worked in the local area since 1999. Denise and the team can help and advise with any information on the local property market and the local area.
Denise White Estate Agents deal with all aspects of property including residential sales and lettings.
Please do get in touch with us if you need any help or advise.
WE WON!
Denise White Bespoke Estate Agents has been honoured with the esteemed Gold Award for two years running; 2024 & 2025 from the British Property Awards for their exceptional customer service and extensive local marketing knowledge in Leek and its surrounding areas.
The British Property Awards, renowned for their inclusivity and comprehensive evaluation process, assess estate agents across the United Kingdom based on their customer service levels and understanding of the local market. Denise White Estate Agents demonstrated outstanding performance throughout the rigorous and independent judging period.
Additionally the team have been successful in receiving the GOLD EXCEPTIONAL award from the British Estate Agency Guide 2025 & 2025 and being listed as one of the Top 500 Estate Agents in the UK.
The Best Estate Agency Guide assess data such as the time taken from listing as for sale to sale agreed, achieving the asking price vs the achieved price, market share of properties available, positive reviews and much more!
Property To Sell?
We can arrange an appointment that is convenient with yourself, we'll view your property and give you an informed FREE market appraisal and arrange the next steps for you.
You Need A Solicitor!
A good conveyancing solicitor can make or break your moving experience – we’re happy to recommend or get a quote for you, so that when the times comes, you’re ready to go.
Do You Need A Mortgage?
Speak to us, we'd be more than happy to point you in the direction of a reputable adviser who works closely with ourselves.
Buyer ID Checks
Once an offer is accepted on a property marketed by Denise White Estate Agents we are required to complete ID verification checks on all buyers and to apply ongoing monitoring until the transaction ends. Whilst this is the responsibility of Denise White Estate Agents we may use the services of Guild365, to verify Clients’ identity. This is not a credit check and therefore will have no effect on your credit history. You agree for us to complete these checks, and the cost of these checks is £30.00 inc. VAT per buyer. This is paid in advance, when an offer is agreed and prior to a sales memorandum being issued. This charge is non-refundable.
Viewing
Please contact us on 01538 381772 if you wish to arrange a viewing appointment for this property, or require further information.
Disclaimer
Denise White Estate Agents - ST13 endeavour to maintain accurate depictions of properties in Virtual Tours, Floor Plans and descriptions, however, these are intended only as a guide and purchasers must satisfy themselves by personal inspection.
Denise White Estate Agents Comments
Tucked away in a quiet cul-de-sac on the ever-popular Pickwood Estate, on the outskirts of the charming market town of Leek, this executive four-bedroom detached family residence offers beautifully extended accommodation, perfectly suited to modern family living. Thoughtfully enhanced to the ground floor, the property boasts spacious, open-plan and versatile interiors designed with both comfort and practicality in mind.
An inviting entrance hall welcomes you to the property, with stairs rising to the first floor and access to a useful downstairs WC, as well as the dining room and kitchen. To the front aspect, the dining room provides ample space for a family dining table and chairs, complemented by a contemporary log burning stove set upon a slate tiled hearth, creating a warm and cosy focal point. This space flows effortlessly into the breakfast kitchen, which is fitted with a range of quality units, granite work surfaces and a wooden breakfast bar—ideal for informal dining and entertaining.
The kitchen opens seamlessly into a generous lounge, a standout feature of the home, enhanced by a semi-vaulted ceiling with Velux windows that flood the space with natural light. French doors lead directly onto the rear garden, further enhancing the sense of space and indoor-outdoor living. A separate utility room sits just off the kitchen, providing additional practicality and access to both the rear garden and the integral garage.
To the first floor, the property continues to impress. The principal bedroom enjoys a pleasant rear aspect and benefits from a large built-in wardrobe, along with access to a Jack and Jill shower room. Bedroom two spans the full depth of the property and opens into a superb en-suite bathroom, featuring a walk-in shower with rainfall head and a luxurious double-ended bath. Bedroom three is positioned to the front and also benefits from a built-in wardrobe, while a fourth single bedroom offers flexibility as a child’s room, nursery or home office.
Externally, the property enjoys a driveway providing off-road parking for two vehicles, alongside well-maintained and easily managed front and rear gardens. Perfectly positioned, the home sits just moments from Pickwood Recreation Ground and within easy walking distance of Leek town centre, with its excellent range of shops, schools, and amenities—perfect for families seeking space, style and a highly desirable location.
Location
Known as the 'Queen of the Staffordshire Moorlands', Leek is a former textile town with a long and fascinating history.
The unspoilt town centre offers a refreshing alternative to from modern shopping malls and has a wealth of independent shops, including former silk mills housing antique and reproduction pine centres, as well as traditional and contemporary furnishings.
Delicious local produce can be found in abundance at traditional butchers, bakers, greengrocers, delicatessens and cafes. Leek is also home to speciality producers of condiments, confectionery, preserves, wine, whisky, craft beers and the traditional Staffordshire oatcake.
raditional markets abound, both indoors in the beautifully restored Victorian Butter Market and outdoors in the Market Place, offering everything from general goods, antiques and collectables to fine foods and special 'Totally Locally' Sunday markets. And when it comes to wining and dining, you can choose from a tempting selection of cafés, real ale pubs and restaurants.
Further afield, you'll find the unique, tooth-like rock formations of The Roaches, Rudyard Lake with its picturesque setting and narrow gauge railway and Tittesworth Water, a popular and accessible attraction for visitors of all ages.
Entrance Hall
Composite entrance door to the front aspect. Tiled flooring. Radiator. Stairs off leading to the first floor with under stair storage. Ceiling light. Doors leading into:–
WC (1.75 x 0.85 (5'8" x 2'9"))
Fitted with a low-level WC and wall mounted wash hand basin. Tiled flooring. Radiator. Obscured uPVC window to the front aspect. Ceiling light.
Dining Room (4.54 x 3.33 (14'10" x 10'11"))
Laminate flooring. Radiator. uPVC window to the front aspect. Fitted with a log burning stove set on a slate hearth. Ceiling light. Opening into:–
Breakfast Kitchen (6.35 x 2.62 extending to 3.43 (20'9" x 8'7" extend)
Fitted with a range of wall and base units with granite works surfaces over incorporating an inset 'Franke' stainless steel sink with hose mixer tap. Integrated four ring induction hob with extractor over, double electric oven, microwave, dishwasher and fridge freezer drawers. Partial tiled and partial laminate flooring. Radiator. Ceiling light and spotlights. Door leading to the utility room. Opening into:–
Lounge (5.59 x 3.43 (18'4" x 11'3"))
Carpet. Radiator. uPVC French doors leading to the rear garden. uPVC windows to the side and rear aspects. Two velux windows. Two ceiling lights.
Utility Room (2.63 x 1.52 (8'7" x 4'11"))
Fitted with wall and base units with worksurfaces over incorporating a circular stainless steel sink with mixer tap. Plumbing for automatic washing machine. Space for a condensing tumble dryer. Tiled flooring. Radiator. Storage cupboard off housing the 'Baxi' combination boiler. uPVC door leading to the rear garden. Ceiling light. Door leading to the integral garage.
First Floor Landing
Carpet. Radiator. Ceiling light. Loft access. Doors leading into:-
Bedroom One (3.77 x 3.41 (12'4" x 11'2"))
Carpet. Radiator. uPVC windows to the front and side aspects. Large built-in wardrobe with hanging rail, shelf and inset light. Ceiling spotlights. Door leading into:-
Jack and Jill Shower Room (1.82 x 1.79 (5'11" x 5'10"))
With a suite comprising of back to wall WC, wall mounted vanity wash hand basin and shower cubicle with rainfall showerhead. Tiled flooring. Part tiled walls. Wall mounted heated towel rail. Obscured uPVC window to the rear aspect. Ceiling spotlights. Door leading to the landing.
Bedroom Two (4.61 x 2.32 (15'1" x 7'7"))
Carpet. Radiator. Velux window to the rear aspect. Wall light. Feature exposed brick wall. Ceiling light. Opening into:–
En-suite Bathroom (2.68 x 2.30 (8'9" x 7'6"))
Fitted with a suite comprising of double ended bath with central mixer tap, walk-in shower with rainfall showerhead, low-level WC and wall mounted wash hand basin. Tiled flooring. Part tiled walls. Obscured uPVC window to the front aspect. Ceiling spotlights. Feature exposed brick wall.
Bedroom Three (2.70 extending to 3.40 max x 2.89 (8'10" extending)
Carpet. Radiator. uPVC window to the front aspect. Built-in wardrobe off. Ceiling light.
Bedroom Four (2.00 extending to 2.79 max x 2.57 (6'6" extending)
Carpet. Radiator. uPVC window to the front aspect. Ceiling spotlights.
Outside
To the front of the property there is a tarmac driveway providing off road parking for two vehicles and leading to an integral single garage. Alongside the driveway there is a small lawned garden area and a pathway leading through gated access at the side, to the rear garden.
Integral Garage (5.40 x 2.51 (17'8" x 8'2"))
Remote controlled electric up and over door to the front aspect. Power and light. Internal door leading to the utility room.
Garden
To the rear of the property there is a private and enclosed garden comprising of a paved patio seating area and lawn, designed with practicality and easy-maintenance in mind, providing the perfect space for alfresco dining and entertaining, as well as a safe and secure environment in which children can play and pets can roam freely.
Agents Notes
** Please note; the vendors of this property are related to a member of staff at Denise White Estate Agents **
Tenure: Freehold
Services: All mains services connected
Council Tax: Staffordshire Moorlands Band E
No chain involved with the sale
Please Note
Please note that all areas, measurements and distances given in these particulars are approximate and rounded. The text, photographs and floor plans are for general guidance only. Denise White Estate Agents has not tested any services, appliances or specific fittings — prospective purchasers are advised to inspect the property themselves. All fixtures, fittings and furniture not specifically itemised within these particulars are deemed removable by the vendor.
About Your Agent
"In a world where you can be anything, be kind"
Denise is the director of Denise White Estate agents and has worked in the local area since 1999. Denise and the team can help and advise with any information on the local property market and the local area.
Denise White Estate Agents deal with all aspects of property including residential sales and lettings.
Please do get in touch with us if you need any help or advise.
WE WON!
Denise White Bespoke Estate Agents has been honoured with the esteemed Gold Award for two years running; 2024 & 2025 from the British Property Awards for their exceptional customer service and extensive local marketing knowledge in Leek and its surrounding areas.
The British Property Awards, renowned for their inclusivity and comprehensive evaluation process, assess estate agents across the United Kingdom based on their customer service levels and understanding of the local market. Denise White Estate Agents demonstrated outstanding performance throughout the rigorous and independent judging period.
Additionally the team have been successful in receiving the GOLD EXCEPTIONAL award from the British Estate Agency Guide 2025 & 2025 and being listed as one of the Top 500 Estate Agents in the UK.
The Best Estate Agency Guide assess data such as the time taken from listing as for sale to sale agreed, achieving the asking price vs the achieved price, market share of properties available, positive reviews and much more!
Property To Sell?
We can arrange an appointment that is convenient with yourself, we'll view your property and give you an informed FREE market appraisal and arrange the next steps for you.
You Need A Solicitor!
A good conveyancing solicitor can make or break your moving experience – we’re happy to recommend or get a quote for you, so that when the times comes, you’re ready to go.
Do You Need A Mortgage?
Speak to us, we'd be more than happy to point you in the direction of a reputable adviser who works closely with ourselves.
Buyer ID Checks
Once an offer is accepted on a property marketed by Denise White Estate Agents we are required to complete ID verification checks on all buyers and to apply ongoing monitoring until the transaction ends. Whilst this is the responsibility of Denise White Estate Agents we may use the services of Guild365, to verify Clients’ identity. This is not a credit check and therefore will have no effect on your credit history. You agree for us to complete these checks, and the cost of these checks is £30.00 inc. VAT per buyer. This is paid in advance, when an offer is agreed and prior to a sales memorandum being issued. This charge is non-refundable.
Viewing
Please contact us on 01538 381772 if you wish to arrange a viewing appointment for this property, or require further information.
Disclaimer
Denise White Estate Agents - ST13 endeavour to maintain accurate depictions of properties in Virtual Tours, Floor Plans and descriptions, however, these are intended only as a guide and purchasers must satisfy themselves by personal inspection.

